岭众全案 | 桓墅软陈 | 泊舍 · 爱的罗马假日
2023-03-01 / 最新动态 阅读:0次 作者:重庆十二分装饰

图片

图片


《罗马假日》讲述了一个关于自由、美好相遇的童话般故事,在当下因为有了设计理想与现实生活相遇,彼此成就实现了浪漫梦境照进现实生活。

"Roman Holiday" tells a fairy tale story about freedom and beautiful encounter. At present, because of the design ideal, they meet with real life, and their romantic dreams come true and shine into real life.


羡慕于他们以彼此之名冠名于家,在外共同分担分享工作的压力与喜悦,回到家也能怡然自得一起阅读聊天,他们的爱情就是在一起说很多很多话,做很多很多事,相互欣赏,彼此骄傲。

They envy the house owners to name their home in each other's name, share the pressure and joy of work together outside, and come home to read and chat together contentedly. Their love is to say a lot of words and do a lot of things together, appreciate each other and be proud of each other.


爱,归属感,阳光,温暖,明媚,舒适,松弛,是本案的感知体现。用文艺、松弛、细腻的手法,谱写出一曲少年时热烈,中年时宽容,老年时相濡以沫、多状态其乐融融并存、安心于此的家园乐章。

Love, sense of belonging, sunshine, warmth, brightness, comfort, relaxation, is the perception of this case.The design uses literary, relaxed and delicate techniques to compose a warm youth, tolerance in middle age, and peace of mind in the home movement of each other in old age.




| 设计机构 / 岭众联合-田艾灵设计 
| Design Company / Elin Imperial Institute of Design
| 全案空间主理设计师 / 田艾灵
| Chief design  /  Elin Tian
| 方案深化设计师 / 何飞鸿
| Scheme deepening designer  /  He Feihong
| 软陈深化设计师 / 桓墅空间艺术设计机构-阿怪
| Soft Chen Designer / Hertrue Art Design-Aguai
| 项目地址 / 金辉·泊舍
| Project Address / The golden glow of the house
| 项目面积 / 300㎡
| Project Area / 300㎡
| 软陈情景产品 / 桓墅空间艺术设计机构
| Soft accessories / Hertrue art design
施工执行 / 十二分装饰
Construction execution / Perfect Decoration
| 项目模式 / 全案高定
| Project Mode / Full Case High Definition



图片


从最初的色彩分析,到他们一家三代的接触交流,尤其是夫妇俩工作生活深度联体、又各自独立的魅力非常让我们欣赏。工作、学习与家庭活动链接的深度性,需要给予他们足够多的家人共同学习办公的共融空间;同时三代同堂的各自隐私分离。均需要在尺度并不宽绰的原始空间格局里一一实现。
From the initial color analysis to the contact and communication between the three generations of their family, we appreciate the charm of their work and life, which is deeply connected and independent. The depth of the link between work, study and family activities requires that enough family members should be given enough space to study and work together. At the same time, the privacy of three generations is separated. All of them need to be realized one by one in the original spatial pattern which is not generous in scale.


白色打底的大空间意味着包容和自由,包容三代同堂的差异感,包容琐碎生活的岁月痕迹,我们在一起,但是又各不同。
The large space with white background means tolerance and freedom, including the sense of difference of three generations living under one roof and the traces of time of trivial life. We are together, but we are different.




-

空间结构

SPATIAL STRUCTURE

图片
图片
图片
图片

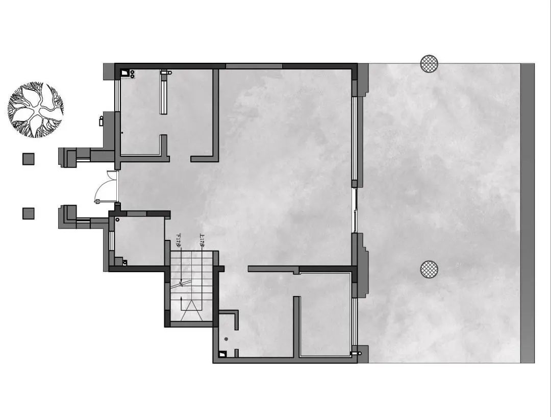
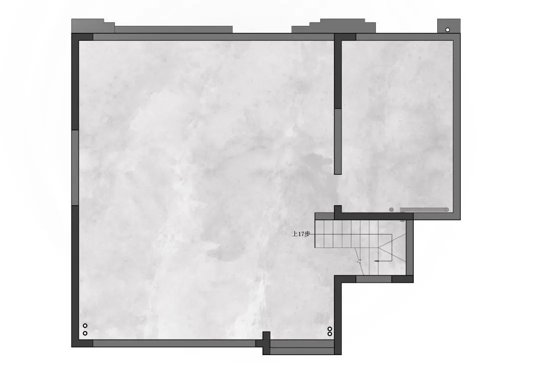
负2层&负1层&1层&2层原始结构图,左右滑动查看

图片
图片
图片
图片

负2层&负1层&1层&2层平面布置图,左右滑动查看



图片

▲ 户型爆炸图




在空间规划逻辑上,从互动楼层的上下交互考量,隐私区和公共区的多空间秩序思考,以及生活动线的模拟推演出发。

In terms of spatial planning logic, it starts from the consideration of the interaction between the upper and lower floors, the thinking of the multi-space order of the private area and the public area, and the simulation and deduction of the activity line.



  • 优化改善负楼层采光通风,让负二层拥有从车库入户挑空的仪式感,以及方便对外工作伙伴相聚交流的公共活动空间;
    Optimize and improve the lighting and ventilation of the negative floor, so that the second floor has the ceremonial feeling of being emptied from the garage, as well as the public activity space convenient for external working partners to meet and communicate;
  • 餐厨区调整到阳光明媚的负一层,还配备了等候观影小客厅以及尺度适宜的客房;
    The kitchen area is adjusted to the sunny negative ground floor, and also equipped with a small waiting room and a suitable size of the guest room;
  • 释放出一层的空间,拥有了两个老人房,工作学习区,会客厅;
    The space on the first floor is released, and there are two rooms for the elderly, a working and learning area and a meeting room.
  • 二层夫妇套房与儿子套房分设交互学习厅;两边保留的镂空区扩展为一、二层的交互空间,家人各自安好、也可很容易达到最快交流;
    The couple suite and son suite on the second floor are divided into interactive learning hall; The hollowed out area on both sides is extended to the first and second floor of the interaction space, family members are safe, but also can easily reach the fastest communication;
  • 前花园的婉约引领,后花园的生活区、欣赏区、硬化活动区各安其所,更是为家人增添了居住的仪式感和趣味性,联动室内外的宜居生活。

    The front garden is gently guided, and the living area, appreciation area and hardened activity area in the back garden have their own places, which adds a sense of ritual and fun for the family to live in, connecting indoor and outdoor livable life

  • 书香之家的欢愉天地
    "Happy world of scholarly home"



    一层空间拥有两个老人房,工作学习区,会客厅。整体空间通透明媚,亮黄色的油画在壁炉上方,仿佛窗外的夕阳余晖洒落在心头舍不得走,温暖治愈油然而生,随意在旁再插上几枝果子,惬意不由已说。
    The first floor space has two rooms for the elderly, a work and study area and a living room. The whole space is transparent and bright, and the bright yellow oil painting is above the fireplace, as if the afterglow of the sunset outside the window falls on my heart and I can't bear to leave. Warm healing arises spontaneously, and a few more fruits are inserted at will, which makes me feel comfortable.

    图片
    图片
    图片
    图片
    图片
    高高的跃层大面书架和长桌给了书香之家一个共聚的欢愉天地,家具的散漫陈列,灵活而松弛。也成为家庭空间自有的文化属性符号表达,日光潋滟的会客厅里细腻的材质家具在纯净里共同融合。
    The tall, wide-spread bookshelves and long tables give the scholarly family a happy world of co-polymerization, and the furniture is displayed in a loose way, flexible and relaxed. It has also become a symbolic expression of the cultural attributes of the family space, and the delicate material furniture in the sunny living room blends together in purity.
    图片
    图片
    图片
    法国哲学家加斯东·巴什拉曾说到人与空间有着双向互动关系。因为住宅空间中最令我们着迷的,往往是空间的情绪以及人居住于此的心灵体验。因此,空间如何依循着主人的心性、气质、偏好与日常行为而缓缓展开,是一个私宅能否向更高的精神领域升华的关键。在这里,我们可以感受到,空间的组织始终由内向外生成,呈现出独立性极强的专属形态。毫无疑问,这是一套有着自我态度和自我诉求的私宅空间。
    French philosopher Gaston Bachelard once said that there is a two-way interaction between man and space. Because what fascinates us most in residential space is often the mood of the space and the spiritual experience of people living here. Therefore, how the space unfolds slowly according to the owner's mind, temperament, preference and daily behavior is the key to whether a private house can sublimate to a higher spiritual realm. Here, we can feel that the organization of space is always generated from the inside out, showing a highly independent and exclusive form. There is no doubt that this is a private house space with self-attitude and self-appeal.

    润物无声的内在转化
    "inner transformation of moistening silently"


    图片
    负一楼作为用餐,观影娱乐,比起一楼多了一些私密感和生活气息,如果说楼上是精神享受空间,那楼下便是身体的放松之所。可分可合的沙发布局,集陈列美观与生活收纳的餐边柜,友好的弧形原木餐桌,大自然的主调色,放松且自然。
    Compared with the first floor, the first floor provides more privacy and life. If the upper floor is a space for spiritual enjoyment, the lower floor is a place for the body to relax. The sofa layout can be divided and closed, the side cabinet for beautiful display and living storage, the friendly curved log table, and the main color of nature make it relaxed and natural.
    图片
    在材质的运用上,自然的干粉砂浆肌理阴影白做画布,温润的多层次色度过渡定制原木家具、细腻纹理的石材局部点缀表达、点到即止的明媚色度……构造空间画面感。在这里,设计师用看似最简单的方式,完成了一次润物无声的内在转化,还原了生活的日常本真与精神质性。
    In the use of materials, natural dry powder mortar texture shadow white as canvas, warm multi-level color transition custom log furniture, fine texture stone local embellishment expression, bright color...... Construct spatial picture sense.Here, the designer completed a silent internal transformation in the seemingly simplest way, and restored the daily authenticity and spirituality of life.


    图片
    图片

    设计师通过优化改善负楼层采光通风,让负二层拥有了从车库入户挑空的仪式感,白色的挑高厅堂给人以肃穆、庄重的感受。空间内敛、克制,让渡并激发着空间的生命力,散发出迷人的光芒。在这里,设计师用看似最简单的方式,完成了一次润物无声的内在转化,还原了生活的日常本真与精神质性。
    By optimizing and improving the lighting and ventilation of the negative floor, the designer gives the negative second floor a sense of ceremony to pick up the air from the garage, and the white hall gives people a solemn and solemn feeling. Space is restrained and restrained, which transfers and stimulates the vitality of space and emits charming light. 
    一场精神的对话
    "A spiritual dialogue"


    图片
    室内的布局,空灵且飘渺,设计师借助家具陈设,虚实对比下,时间的概念仿佛消失,取而代之的是一场精神的对话。二层夫妇套房与儿子套房分设交互学习厅两边,保留的镂空区扩展为一、二层的交互空间,家人各自安好、也可很容易达到最快交流。
    The layout of the interior is ethereal and ethereal. With the help of furniture, the concept of time seems to disappear and be replaced by a spiritual dialogue. The couple's suite on the second floor and the son's suite are set up on both sides of the interactive learning hall, and the reserved hollowed-out area is expanded to the interactive space on the first and second floors, so that families can easily achieve the fastest communication.
    图片
    图片
    图片
    主卧黑色线条感和丝绒,棉麻材质的选择呈现出文艺浪漫的气息,床头水晶灯的光影摇曳与芥末黄的床品刺绣碎花相映成趣,灵动优雅,草绿色的壁炉和抽象艺术画,地毯色彩的星星点点,它们在不经意之间相得益彰,曼妙过渡,木百叶与纱,打破传统的卧室窗帘形式,如梦如幻,轻盈飘逸。
    The master bedroom has a sense of black lines and velvet, the choice of cotton and hemp material presents a romantic atmosphere of literature and art, the light and shadow of the crystal lamp at the head of the bed and the mustard yellow bed embroidery flowers complement each other, the smart and elegant, the grass green fireplace and abstract art painting, the carpet color dots, they complement each other in a subtle transition, the wood blinds and yarn break the traditional form of bedroom curtains, Dreamlike, light and ethereal.

    图片
    图片
    图片

    图片
    图片

    儿子房的蓝色系不同层次的蓝白,云朵壁灯和熊猫抱枕,是童心的保存和少年感的内敛,红色撞色,充满青春的朝气,不失活泼鲜明。
    Son room blue department of different levels of blue and white, cloud wall lamp and panda pillow, is the preservation of childlike innocence and juvenile sense of introverted, red color, full of youthful vigor, do not lose lively bright.



    图片
    图片
    图片
    室外的植物景观,在木栅栏的映衬下,如同屏风画卷般,可观四季之美,凸显自由意趣,也在无形中回应了室内的空间风格,将住宅的设计理念延续贯通。
    The outdoor plant landscape, against the backdrop of wooden fences, is like a screen scroll, which is quite beautiful in the four seasons and fully embodies the freedom and interest. The outdoor plant landscape, against the backdrop of wooden fences, is like a screen scroll, which is quite beautiful in the four seasons and fully embodies the freedom and interest. It also invisibly responded to the indoor space style and continued the design concept of the house.

    .

  • 图片

  • 图片

  • 图片

  • 图片

  • 图片






  • 图片



  • 图片


  • 图片




  • 图片





  • 老人房运用简单干净的同色系编制出宁静平和。

  • The old people's room uses simple and clean same color system to make it quiet and peaceful.



  • ·

  • ·

  • ·


快捷导航
联系我们
十二分空间·生活集:江北区喵儿石创艺特区37栋3楼3-1

十二分空间·概念馆:渝北金渝大道106号金山意库12栋1层
桓墅空间艺术设计机构:渝北区金渝大道108号金山意库12栋1层3、28号
岭众联合-田艾灵设计:渝北区金渝大道108号金山意库12栋1层2、29号
Copyright © 2024 十二分装饰版权所有 渝ICP备18016191号-2

渝公网安备 50010502003345号