

EIID' Sound of Music音频:00:0003:52[♫_Josh Ritter - Come and Find Me]
质感,细节,有品位,看到这个家,一下子就能捕捉到空间主人的气质,温润而不失力量,初识高冷,近了才发现,原来饱含热情。空间设计的灵魂是“人”;审美、选择、信仰、习惯、生活背景等,让空间有了专属的、独一无二的、流动的气韵,去打破向内或者向外的边界,探寻且表达自己。本案业主对设计师说的最多的话就是:"你们看着办,我相信你们,你们定了就行"。信任是最踏实的基石,对设计有追求,契合度高,我们的设计团队,用专业的知识、工具梳理表达出业主准确的意愿,量身定制未来生活场景。同时对业主有百分百责任心,有信任感;执行力强,减少内耗,不是纯粹玩设计创意,一定是要对委托的甲方百分百的负责,负责任地把设计真实落地的。


-空间场景完整视频-
[灵感来源关键词-火山]
—
火山为灿,它默默积累而后绽放,在白茫茫的沉寂雪山下,在黑灰岩石之下,有掩盖不住的红色能量。本案以雪山白,岩石黑灰,岩浆红和雪山上的落日余晖光的颜色。银河淹没没有苍穹,在黑灰色的山岗上,擦上一根火柴,燃亮星空之上的沟鸿,击碎沧桑寡淡的夜。
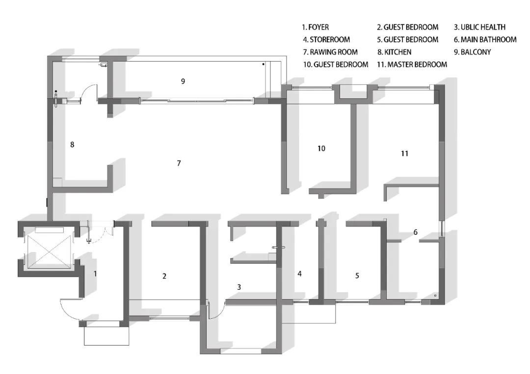
[空间结构-设计梳理]
—
原户型被繁碎墙体包裹,面积足够却房间很多,导致空间狭窄,每个空间都显得局促、独立、无趣;其次,对于居住者的使用分析,把五居室改三居室,融合应用至长期使用空间。
原封闭式的厨房打造出一个互动、开放的社交的西厨环境,岛台餐桌一体设计,可用作料理台、餐柜,不再局限于厨房这一“孤岛”,同时扩大了客餐厅,把原有传统横厅构建出足够丰富的、相对独立的、有层次分区的空间。
整体规划并非简单的材料堆砌,着重关注的是人身处于空间的体验感、空间结构感、通过减少装饰性的元素去除外在的修饰。围绕着舒适性、享受感、开放性与通透感的主题。

[设计手法关键词-序列感]
设计师运用序列感的手法从硬装到软装前后贯穿。跟写作中的起、承、转、合相似,有良好的序列章法,空间序列的构思是通过若干相互联系的空间细节,构成彼此的有机联系,而具体的构成形式则随着功能要求而变化过渡,达到既有统一性又具有多样性。



以面和线延续整个空间,控制比例大小与疏密之间的关系,带给居住者开阔而不失细腻的精致感。
主卧空间的粗狂与细腻,私密与开放,都在这个空间并存。高低大小长短不同的一张床,一组画,一组灯,都像业主夫妻二人,他们相互依偎陪伴。共度漫长而又短暂的一生。


空间的处理,促成集睡卧洗漱、装扮于一体的融合空间。围绕着舒适性、享受感、开放性与通透感的主题。

女儿房和我们常见的女儿房不太一样,不是粉粉嫩嫩的少女心,而是心中有着广阔宇宙的‘大’女孩。
妹妹说:我有一个梦想,长大后想成为一个宇航员。
设计师说:好呀,那我们现在就开始造梦吧,徜徉在宇宙之中,去探索星空和海洋,去感受风雨阳光和彩虹。



客房干净利落,迷你迎客松,欢迎你到“我”家做客。


[设计之外的创意迸发]
本案实景项目落地,被好多同行、业主表达喜欢的原创设计-圆弧岛台,单独来分享一下设计理念:
做岛台的时候多设计了一个黑色造型的台面,餐桌自然放在第一个台面上,把轨道插座的位置做了内退处理,呈现出来不突兀,自然的包容在一起;搭配不一样的双色渐变亚克力材质的餐桌支撑脚腿,整个呈现出设计感、细节感满满、层次感、不一样的设计效果。—滑动浏览设计沟通记录—
做每件事情的初衷,只是源于一个灵光一闪的想法,能因此实现,能被看到和鼓励,让我们很开心,愿永远热爱工作,热爱生活,发现并创造,保持真诚!


无论大宅还是小家,又或商业空间,岭众团队和服务,始终为自己所在的工作岗位,能够帮助每一个客户朋友实现梦想家园、带给客户朋友一家未来生活的幸福感而自豪;以能助力达成品牌愿景、成就委托方事业为骄傲!
一体化定制设计到落地20余年,坚持口碑传递、看重业主装修过程、居住后的体验感。保障材料提前安排和施工到位节点匹配,每一套工地都会配备一名主案设计师、执行设计师、软装设计师、和项目经理、监理、客服管家,微信群里定期发送现场施工情况的视频或者照片,为业主即时更新工地状态,包括材料进场验收,主材对接,施工进度情况,后续工作安排、特殊情况说明等等,确保及时高效、全面透明、如实陈述。