


常日无风的宁静,诗情画意
自然,静雅,纯粹,生动,灰调高级


家不由定义,只有感受
萍姐语:”我在想我家也要像天天度假一样,很放松。”随着步伐深入,交予了更多的种子:“我想拥有大大的岛台,喜欢壁炉,也喜欢各种喜欢的元素都混搭融合一起。”以此为延续展开,我们都不知道最终会走向何处,就寻着语言打开的场域,顺着心境,达成一种默契,滑行于此。不由定义,只有感受。

![]() | ![]() |


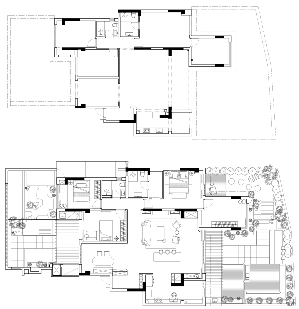
平面动线规划
开放自由的空间享受

关于平面,前后经历了三到四次结构梳理,探寻出来。最终呈现,拥有2.6米的超长岛台,承托起平日精心的布置,餐厨的流转。壁炉上隐形的投影幕布,美与观影实用兼顾。
原本的次卧打开,贯穿前后花园,也作为家人聚合的多功能区,亲朋好友来,加两把椅子,即可作为供多人聚会的餐厅。闲来时,写字品茶。整个空间动线通畅而流动。契合业主,想要开放自由的空间感受。余下卧室兼顾保留,享有三代同堂的乐事。
改造前后对比
材料搭配选样
![]() | ![]() |
▋材料选样
▋改造过程

“开车环江,一路看到开阔起伏的景致是一种享受,也是我买这里的缘由”。业主如是说起。动容的思考着,那么从山水林间取一弯景,就足以生长出滋养的源泉。前厅后院就成了我们打造的重心之处。

![]() | ![]() |

当一件件陈设的进入,完善,串联成完整的空间时,本身所呈现的叙事感,就在述说期间的品质。在(拆成)白纸的空间上,描绘情感与诗意的图景。
温润光感的干粉砂浆,从墙面延展到天花板,室外的自然光与景色被尽可能多地引入室内,再辅以深浅有致的不同的米棕色调,自然感的家饰,置身其中,就会沉浸在全然的放松里。
室内延展了花园的素白雅致,意蕴纯粹,空间留白处理,做为柔性包容的基底,不争抢,只让画品在其上着有色的墨,肆意伸展。






背后的西餐区,岛台上像鱼儿穿梭的铜质吊灯,当夜幕降临,洒下的光,有沙滩和海水的影像。




吴老的《小鸟天堂》画面追求繁杂之神秘感。书中:“万籁俱寂,在深山野岭也未必经常出现,这是难遇的美境。”借此送给业主,愿长日无风的宁静常伴。
光线漫步于此,于灯肚,于杯盏间,于橡木面,不同的物件折射着不同的光感,穿行坐卧间,品味丰富的层次。


窗外的景色就像是映衬在画布上,每天起床时看见窗外四季变换的景色,有治愈人心的作用。
素雅的草植引进画框,顺应自然做了创作,用棉麻染色做卡纸的深色压边,细小的材质也构成述说。




流水小桥的景致,用窗做景是独属于女儿的。窗起卡座,闲来坐时,洒满阳光静观庭景,是何等的闲情。打开一边的窗,跟亭内的人儿谈天说地,动态的情趣,也可热闹起来。



外婆的房间,深棕色古典感的定制床,调整了高低靠背的尺度,让其符合空间。


一步一景皆成诗
借助阳光雨露以及风,营造出生活的诗意,让居住的步调有停顿驻足的美感。拍照时,粉嫩的花朵已然爬上窗台。
基底上延续室内的留白,更多的留给花卉和植物的色彩。水磨石一体打造的卡座区可围炉夜坐,可听着流水享受伞下的阳光。亦可把滨江的露营,搬到家院,邀三五好友,尽情的欢闹,也能安享一隅共读一本书的意趣。延着错落的汀步,流水小境,转角之处,静谧私有,一动一静,融洽自处。





![]() | ![]() |

室内外不同质的白色为底,搭配木质,柚木调和出的灰调木作,以及蜂蜜色的地台木质,让人的注意力更多关注到自然与空间本身的链接。
