

树影随风摇曳
填满绿色,变得沉甸
河畔泛起的浮萍
是绿色的脚印

项目地址 / 远洋山水赋
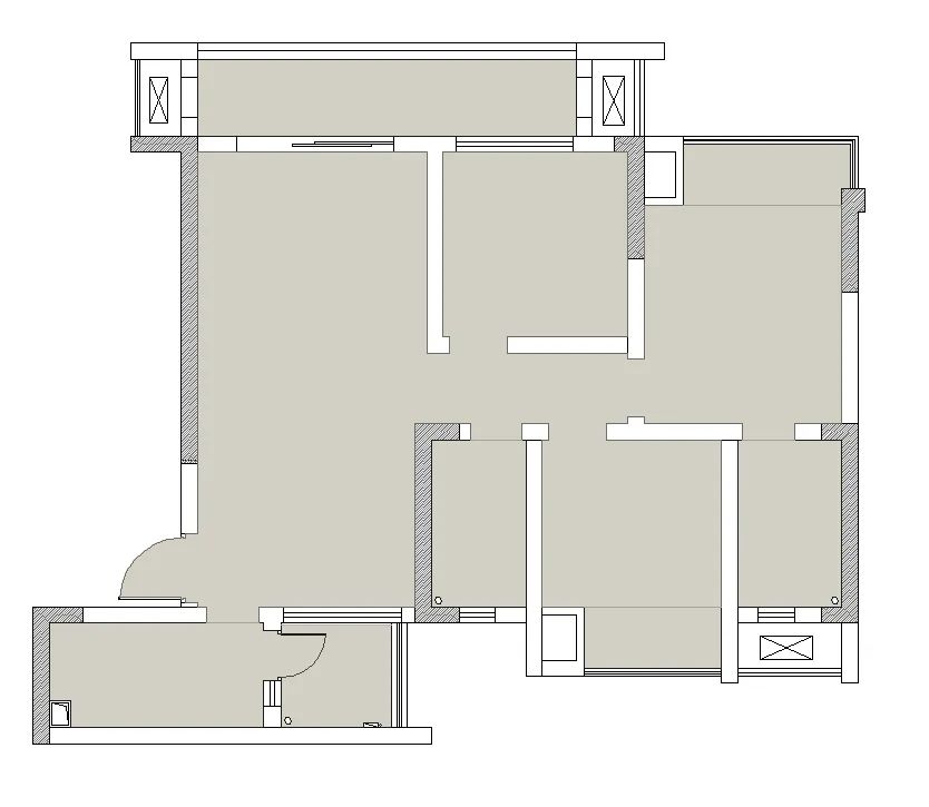
项目面积 / 85㎡
硬装设计 / 十二分空间设计-傅杰
软装设计 / 桓墅空间艺术设计-生猛
项目类型 / 全案设计
#
一人居 法式浪漫
三房改两房 舒适布局
本案是为一人居女性设计的小家,女业主开朗有活力,希望能够打造一个充满浪漫法式风情的居住空间。
我们从她的喜好和生活方式出发,为她打造了一个兼具美感、实用性和个性化的居住环境。用比较柔和的鹅黄色系,搭配部分绿色系,带一点南洋风格,主卧室衣帽间的纱幔更多凸显女性的柔和,地面有一些很有趣的小花砖,搭配在生活区和卫生间,增加空间趣味性。
平面布置图
“舒适自由的空间感受”
Comfortable and free space feeling


“逐渐松弛的放松感”





空间单一的形态,在设计师的雕刻之下,被赋予栖居形态,温暖而素雅的着色氤氲纯净气息,而材质、光影将情绪丰盈,一器一物,精心雕琢细节,一幕幕动人的日常将在此处上演。





餐 厨
“穿透流动的平静感受”


以空间便捷动线和多元使用功能为设计要点,客厅与餐厅厨房衔接开放,营造流动、自由、交互的全新秩序,小型岛台连接餐桌,拓展出更多实用空间。餐桌融入柱体与客厅茶几呼应,丰富形式美学,利用恰到好处的韵律节奏,去柔和空间的温度,提升日常居家的舒适体验。




卧 室
“表达自我的私属领地”


当空间能够表达出自己的内在特质时,设计才能真正发挥出其价值,而所有的空间元素只是实现这一目的的工具。


主卧套房的设计,拥有干湿分离的卫生间,独立衣帽间与洗衣区。优雅的线条,温柔细腻的配色无疑是松弛的氛围,绘就与呼吸同频的视觉表达,以视感上的留白烘托自然,安然静谧,拓展了惬意生活的可能性。


^衣帽间


^卫浴间

父母房空间,以简洁干净的肌理唤醒内心的宁静,得以真正卸下疲惫,白色铺就,灰色点缀,增添沉稳安定气息。