
遥远之物独一显现,虽远,仍如近在眼前
静歇在夏日的正午,延着地平线那方山的弧线
或顺着投影在观者身上的一节树枝
感受那远山,那树枝的「灵光」
_
瓦尔特·本雅明


空间结构
功能与设计
SPACE STRUCTURE
住宅的生长力脱离不开两个重要因素:一是周围自然环境具有生命力的特征,二则是空间对居住者的包容度。
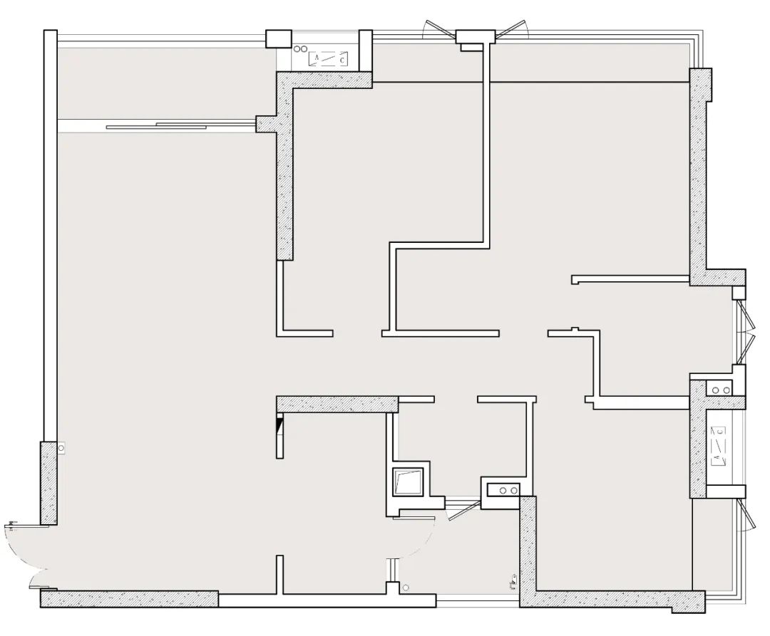
1.原始结构户型没有玄关
2.客厅空间过于狭小,厨房墙体多过于狭窄
3.整体没有足够多的储物空间
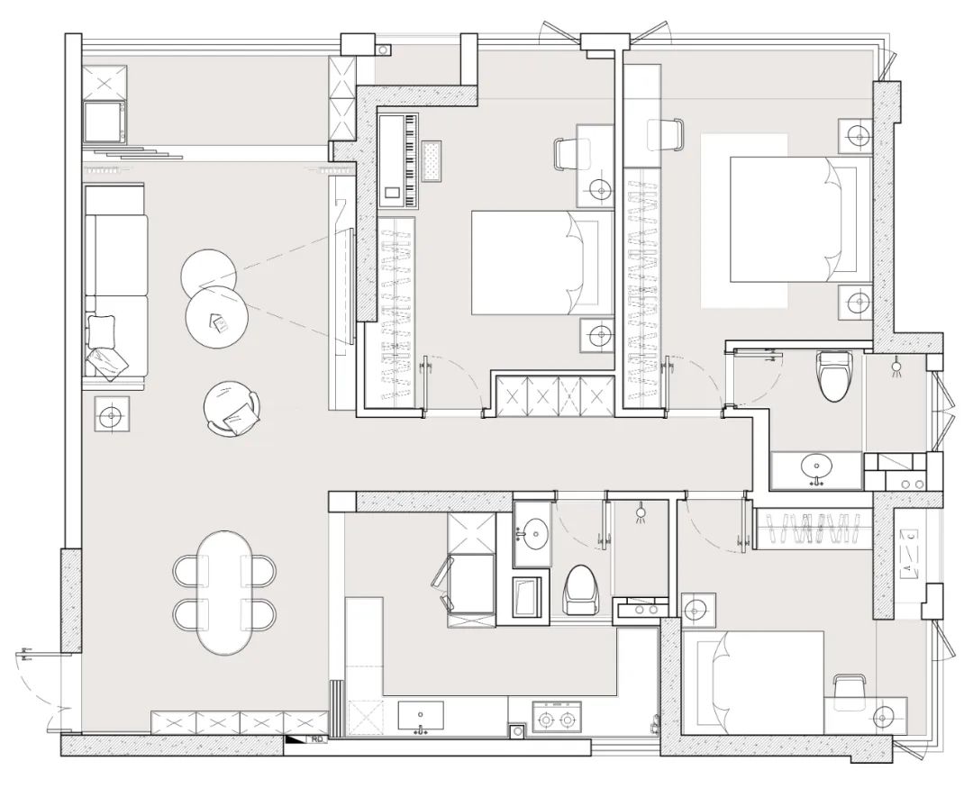
面对上述的问题,我们根据户型结构和业主的需求喜好做了相应的调整:
①作为一个没有玄关的竖厅户型,合理布置餐边柜结合鞋柜功能,入户外保留小鞋柜做补充,避免了餐厅的尴尬;
②客厅空间尽可能最大化,将原本阳台空间纳入客厅进一步扩充客厅体量,将原有滑门改为联动门,隐蔽布置洗衣机、烘干机、扫地机器人等,既保留了阳台的洗衣、晾晒、储物功能,又扩大了客厅空间,更使得光线更好地进入室内。通过软硬装的搭配,功能性储物和氛围展示都有机的融入空间;
③厨房空间实用性非常重要,根据动线和使用习惯,放置所需电器,设计小岛台,设计联动门,形成可开放式空间,让厨房跟餐厅互动,给予用餐生活更多的想象空间;
④主卧和女儿房的开间都比较大,拆除原有主卧衣帽间空间,将两个卧室的衣柜设置在床对面,增大储物空间的同时使得主卧有个属于自己的书桌区域,女儿房有了钢琴跟儿童学习桌摆放的位置;

-旧房拆除前原始户型图-


-平面布置图-
软装规划
材质与色彩



硬装整体空间干净,软装以大面积木色材质+高级灰+暖白为主。带着原生态的纹理质感,没有风格强烈的元素,感知其中隐约的克制,或许隐隐约约,这本身就是一个很东方的情绪,中庸、温润、质朴。
捕捉业主最钟爱的元素——蓝花楹因其花如蓝雾一片,朦胧清雅,似梦非梦,在艳阳下,又觉得一树蓬勃的花像异色火焰,绚烂到极致,又称为蓝色火焰。
实景展示
品质与视觉


色彩是最好的隐喻无需累赘的语言,蓝是宇宙起源处最本质的色彩亦是 “乌托邦”世界的底色。在与简约的硬装造型相结合的基础上,客厅空间自然质朴的肌理墙面、皮质沙发、大理石质地的茶几、棉麻质地的毯子、剑麻地毯、一张点缀蓝色拼皮质单人沙发和那三寸日光.....简单的材料,质朴的表达,自然、原始。





餐厅与厨房之间,是联动的多功能区,围绕器物展开,不拘于具象的限定中,西厨区开放,创造舒展的空间格局和氛围,于此连接、交融、延伸,确是日常的静谧之意。



来到主卧空间,延续客厅的色彩方案,形成整体统一的调性。大面积的蓝色铺陈,带来静谧优雅的氛围。


女儿房整体分色铺陈,墙面做了粉色圆润弧度造型,床与墙面分色做造型颜色上的呼应,配以亚麻质地的床品,中和整体的粉色,角落黑色钢琴作为空间的一重色,使整体空间一下子干净下来,辅以蓝色系挂画,粉蓝色在整体空间得以延续。


另一间儿童房选择木色+选择有高围挡的床,保证了空间的安全性,墙面延续木色饰面,蓝色童趣画作,整体空间延续色调的基础上更为童趣。




