
一切美好的艺术都来自人类的精神
不需要任何外表虚饰
—伊莎多拉·邓肯
[♫_Quadrant Shield Music]

项目_Location 面积_Space
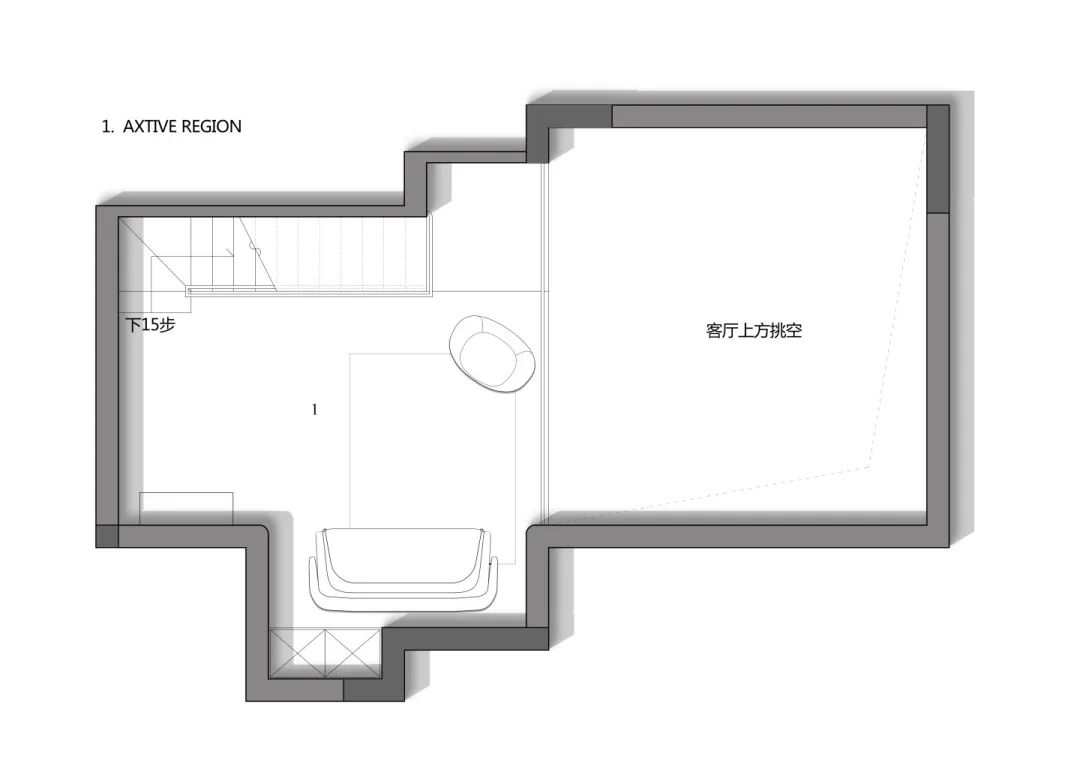
改变、更新,生活也随之迭代升级。结构改造是项目主体,原始房屋拥有斜屋顶的优势,设计师利用层高做了一个开放多变活动区的隔层,通过客厅借光引入,把需要社交空间多元化、多层次、多维交互的空间属性,满足居住者最本质的空间诉求。
墙面舍弃繁杂琐碎的装饰以及传统材料堆砌,把本该做的套装门形态和色彩体现艺术感,形成空间的亮点,构成线条,块面的结合,让空间更有主体性。斜屋顶只需运用简洁的线条轮廓构建,空间框架丰富层次感、力量感。

以艺术陈列的形式去填充空间的点线面,在质朴松弛的质感中刻画精致和优雅,仿若置身美术馆般的家。动线 、功能 、审美 、陈设 、不拘风格, 东方or西方的细节兼而有之, 复古跟鲜活跳脱并不冲突。
岭众联合-田艾灵设计
34
°点击浏览项目完整视频

无关形式或材质
思想与内涵才是解锁「观念艺术」的密码
不以表象风格定义空间
在思维重建中冲破桎梏
在摧毁从众中歌颂自由
无序之序的设计言说间
一场邂逅万象的艺术飞行至此开启







公区以一幅“画中门”点亮空间的调性,旁晚迎来暗紫色的降临,少女的舞蹈优雅美妙,明亮又浑厚的姜黄色沙发像一束夕阳的光停留在这里就不走了,黑色线条的元素干练利落凸显细节质感,用藤编水晶和烛台去彰显光的姿态。





繁复而雅致,含蓄而有个性
用色彩碰撞解构几何空间
弥漫着经典年代的艺术氛围





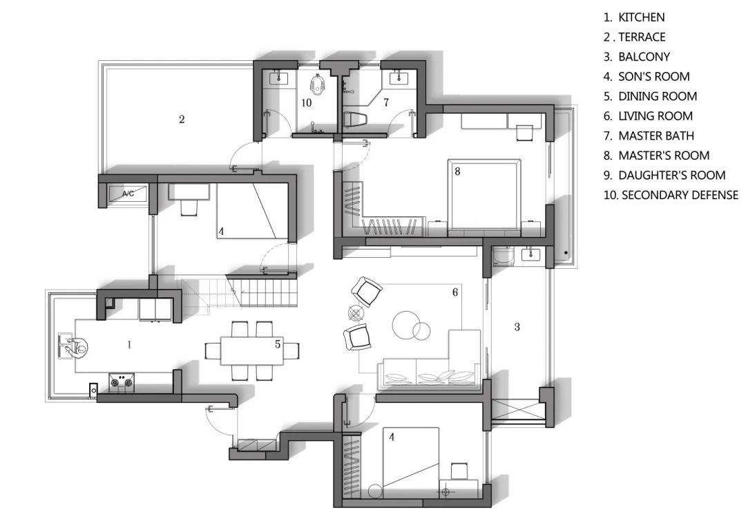
儿子房玩乐为主的陪伴区域,卡通主题的启蒙空间,同样是灰调原木,加以点缀点状的彩色图案,提升活泼和童趣感。




主卧拙朴的基调,桥梁,水滴,圆圈元素,老木头和做旧的印花,给人以宁静平和。

