

岭众联合-田艾灵设计
19
「点击可浏览项目完整视频」
“东方神意”是一种我们眼中的来自于传统的自在生活方式,追寻对称、庄重,寻一份雅静自在的心境,如清透之风,安住日常每一个当下。

—
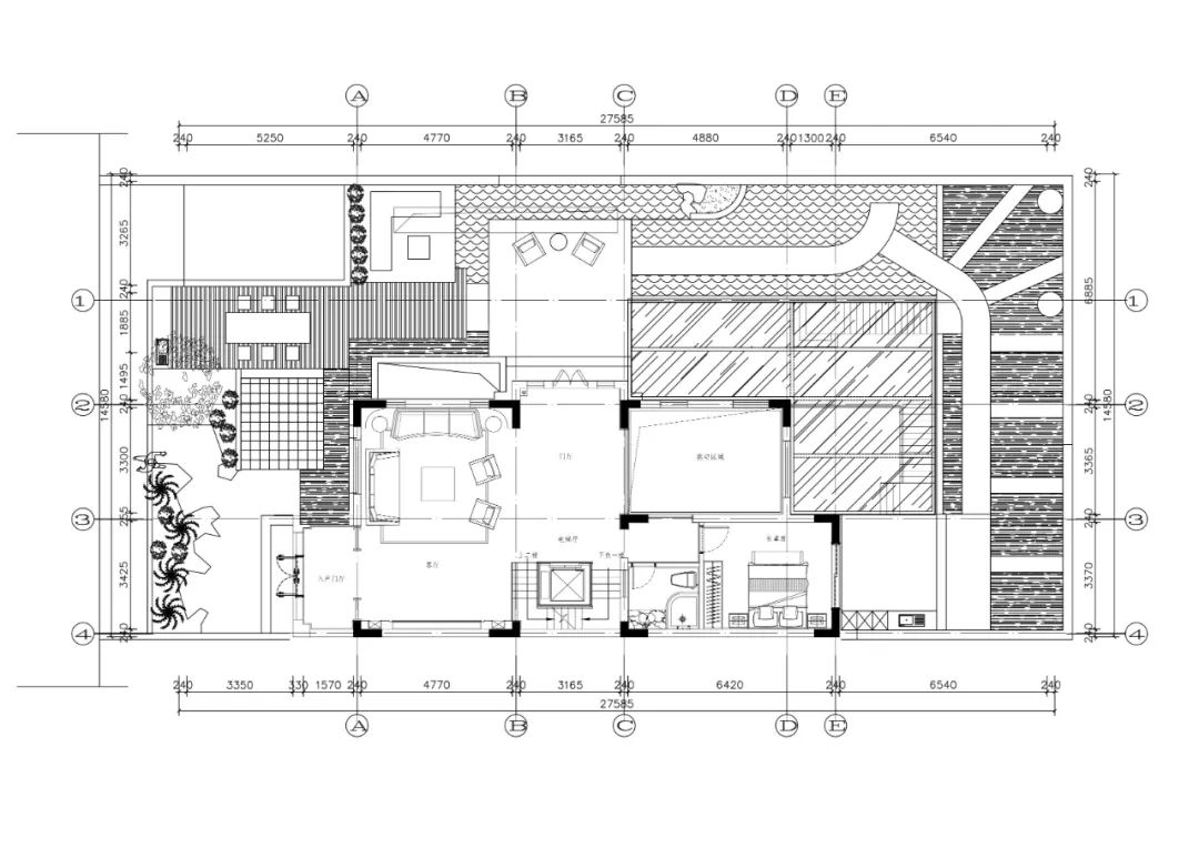
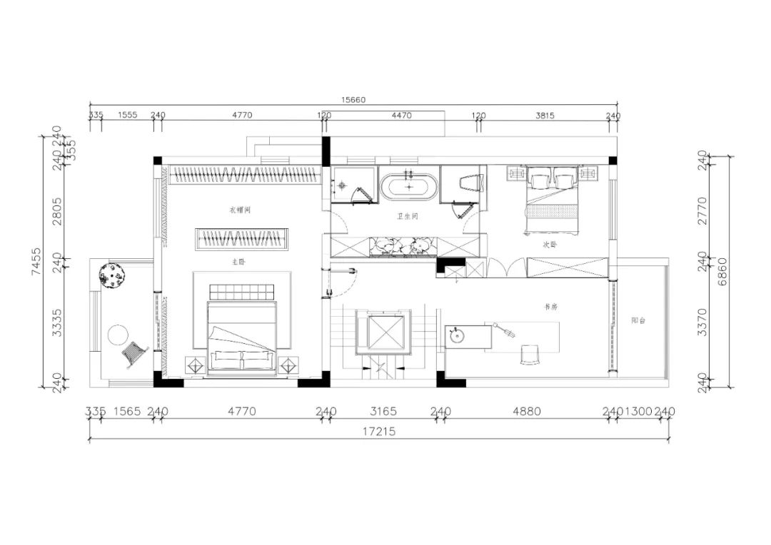
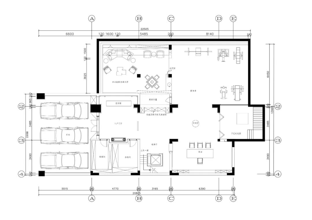
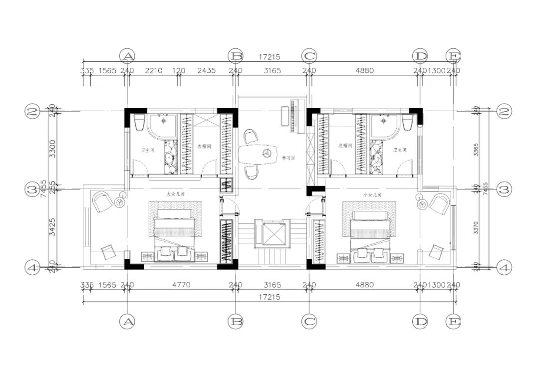
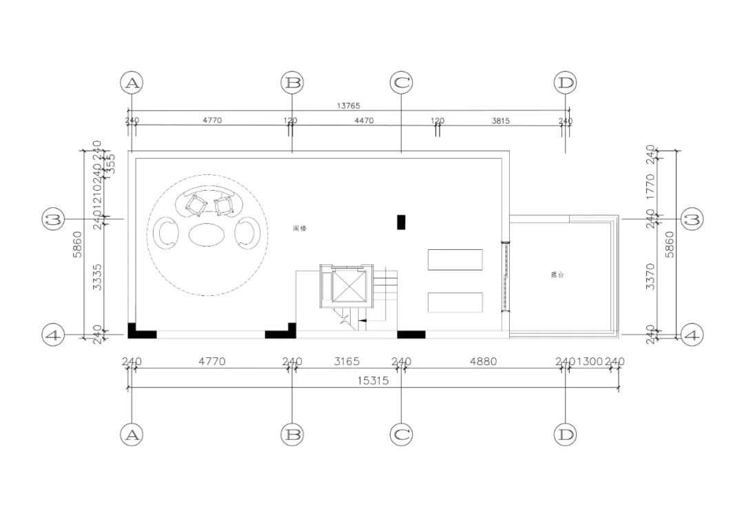
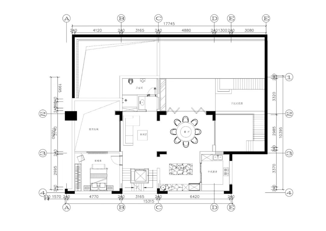
「上下滑动浏览完整平面户型图」
从生活的本质层面,去理解和规划空间,设计价值就是足够系统和架构能力,沉淀于专业和经验梳理,才能所构起点不同,所达即有步骤可依。
一个设计者首先是一个生活家,用感知做情绪氛围,用理性做空间梳理,细腻而谨慎,贯穿始终的执行力。
此套空间架构小分享,将曾经只连通一楼的花园,三层错布分置、直接外接到负二楼,形成自然动线的内外联动,构建负二楼到负一楼,负一楼到一楼,错位而置的挑高空间,让别墅的上下交互情绪流动,足量自然光倾斜而入,一扫曾经的黑暗负楼层地下室,变身功能齐备空间宽裕的阳光大宅。

户型爆炸图
Apartment type explosion map



将传统东方韵味与现代简洁的,设计语言巧妙的结合在一起,提高空间的舒适感,打造出更符合当下审美的家居空间。每个人都渴望一处宁静,新中式风格含蓄内敛,出落于尘世之中,沉静于喧嚣之上,保留东方神韵的同时,尽量引入当代生活方式。


东晋隐士陶渊明所作《桃花源记》,描绘了人们理想中的隐居胜地,成为后世画家热衷描绘的题材,仇英的《桃源仙境图》也应是取材于此,描绘文人理想中的隐居之乐。
取北宋全景式大山大水的布局特征,视野开阔清旷,境界宏大,疏密对比强烈。所绘高山、泉水、白云、石矾、古木、楼阁等,笔墨均精丽艳逸,骨力峭劲,人物刻画得生动而富有神采。山峰设色浓丽明雅,勾勒、皴染细密。山间厚云排叠,造成了云气迷蒙的幽远空间,展现出远离世俗、虚幻飘渺的人间仙境。




将只在一楼的花园错位而下给予从负二楼直达内外上下的空间尺度与风景。





地下两层被巧妙地转化为室内空间,透明玻璃扶手和宽阔的窗景,一扫曾经的黑暗负楼层地下室,使得整个空间充满了通透感,形成自然动线的内外联动,负一层、负二层与地面中庭自然互动,打破了物理边界,增强了人与自然空间的联系。


打开负一楼的顶与一楼贯穿,自然错位分区出客餐厅,让上下关系自然流动、更提升别墅的空间气度。



《千里江山图》千山万壑争雄竞秀,江河交错,烟波浩淼,气势十分雄伟壮丽。山间巉岩飞泉,瓦房茅舍,苍松修竹,绿柳红花点缀其间。山与溪水、江湖之间,渔村野渡、水榭长桥,应有尽有,令人目不暇接。

大面积铺陈温润的木饰面,以少量的金属材料作为点缀,增加空间沉稳感的同时,保留了现代时尚的感觉;棉麻质感的触感与温度恰如君子,温润自洽;空间留白与质感、雕琢与随意自然交融;国风正当潮,多元文化糅合并济,赋予这个三代同堂之家、雅而有质的当代东方生活模样。







主卧空间回归主人向往的舒适柔和状态,床头的山水装饰背景,散发着平和高雅的光辉,仿佛带人穿越到民国时代。窗外的微风拂过,时光在这一刻自然停留,一切都是如此安逸。





小女儿房,专属于孩子活动以及生活的区域,造型和色彩整体呈现圆润柔软形态。体现自由与纯真,梦幻的广阔想象世界。



国风正当潮,多元文化糅合并济,赋予这个三代同堂之家、雅而有质的当代东方生活模样。愿我们的业主朋友在这传承之宅共享生活美好!祝福我们都能于岁月长河里,尊重与坚守好每一份心之所爱,于内静中坚守好那一份初衷。
——————
感谢业主入住后的肯定反馈 ⇩
