
项目地址_Location 项目风格_Style
万科御澜道 现代自然
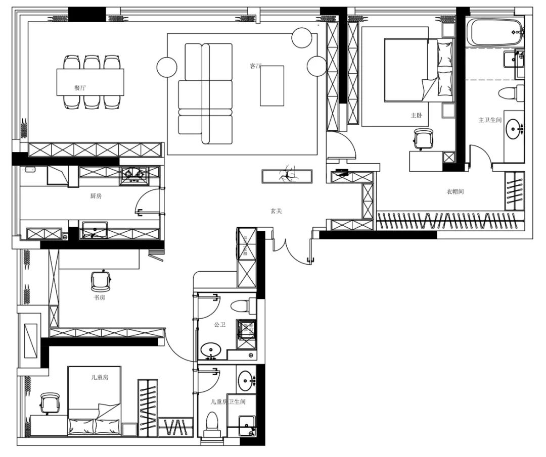
项目面积_Space
125㎡
项目设计_Project Designer
十二分空间设计
软装陈设_Soft-fitting Designer
桓墅软装艺术馆-温然
项目类型_Project Mode
全案设计





空间中各功能边界的融合,各功能区之间的借调与转换,充分利用室外江景,透过悬空入户与窗外的江景达到各功能之间互为景致的效果,整体视觉通透开阔,各功能边界之间的模糊,空间更为整体。

-原始结构图-

业主对于原始户型最大的不满意在于视野不够开阔,动线不流畅,储物空间不够。
空间改造规划:
1/ 把原始入户鞋柜拆掉,达到入户的视觉开阔,右侧杂物间采光和实用性也不够,拆掉隔墙,做成了入户鞋帽间,美观度也更高。
2/ 隔出来的餐厅拆掉,达到整体空间开阔通透的目的,冰箱位置也拆掉,达到动线流畅的目的。冰箱位置拆掉以后公卫的门就正对客厅,所以决定卫生间的门换一个方向,预留出了水吧台的位置。
3/ 儿童房的过道太长,空间利用率不高,所以把门的位置内推进去,次卧改的书房就变得更整体,做整壁的书架加隐形门,整体性更高。
-前期效果图,左右滑动查看-

入户玄关的绿植为空间增添一抹生机,水吧台的绿色石材墙面与这一抹绿色做色彩呼应,材质又区别,整体又细节又有呼应。鞋帽间没有灯光,整体做木饰面有点单调,增加了蓝色猫眼木皮,使空间有亮点,兼顾观赏性与实用性,柜门用镜子代替,使空间通透的同时又解决了实际使用需求。






客厅整体是个长厅,这种空间非常适用双层对坐沙发,达到客厅与休闲区域互不干涉。



餐厅是L型大落地窗,可以直接看到非常漂亮的街景,因原开发商做了地台用于固定栏杆,此区域实际有点鸡肋,就现场条件直接在栏杆与地台上固定一个L形长凳,小朋友可以坐在上面看书玩耍,整体空间功能更多元化,而不是一个单纯的餐厅就餐空间。





书房做了开放式书房主要小朋友用,小朋友是个学霸,有非常多的书,所以做了整面的一个书柜,整体延续了空间的木饰面,飘窗直接包窗套,上放软垫,可以作为休闲看书区域。


业主都很喜欢酒店的质感,整体氛围就较为克制精致。
木饰面延续主卧空间颜色,上半部做了硬包,床头挂画与吊灯用金属材质吊杆,整体墙面有细节又精致,直接做了整体床头柜,整体空间感更通透, 通道放了梳妆台作为卧室与衣帽间的分割,侧面有柱子拆不掉,做了乳胶漆同色的柜子包裹,作为梳妆台部分的收纳空间,视觉更整体的同时增加储物空间。



儿童房整体简洁干净,用了很纯粹的宴蓝,床背板与衣柜相接,做了木饰面与硬包拼接,床头暗装了壁灯,平时不用收平,打开即亮,不用单独去开关,对小朋友使用起来更方便。床头的挂画为川美毕业的版画《蓬勃的生机》,买来送给小朋友,小朋友最珍贵的永远是蓬勃向上的“生命力”,祝福孩子恣意生长,永远有蓬勃的生命力。
