
把冰冷钢筋水泥变成有自己气质特点的家。设计从来都不是假大空,无论从空间想象到设计图纸规划,施工的过程到软装搭配的落地;只拥有美好的初心仅仅是不够的,更需要把设计落到实处,把细节做到完美。十二分走过22个年头,为万千业主打造“我”想要的家。同一楼盘的不同设计,不被定义的空间,不一样的呈现方式。目前十二分装饰在华润悦府楼盘装修设计的业主络绎不绝,今天为大家精选部分华润悦府项目鉴赏。

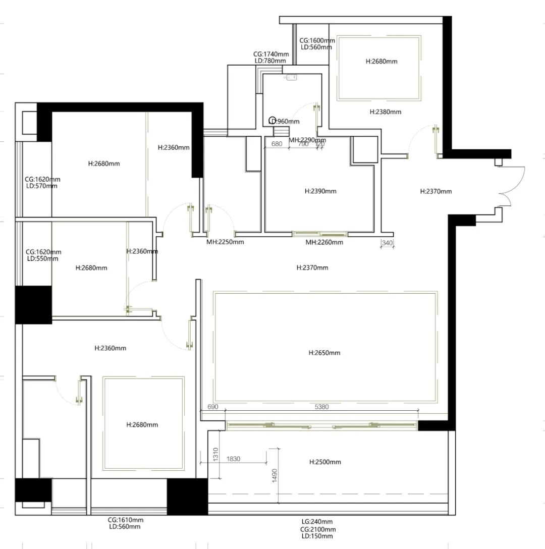
-原始结构图-
我们要解决的是功能、动线的合理性。但是项目独一无二的景致,空间意式现代定位,又让它充满了个性,从材质组合到色彩、灯光、陈设的搭配都要有它特有的风格,这也是空间中共性与个性的关系。


摒弃掉繁复冗杂的饰面陈设,从入户延伸而至的色调、材质将空间立面包裹。电视嵌入,同时定制隐藏收纳空间,空间变得干净多趣。侧沙发背后打造玻璃书房空间,空间视觉得以完整统一。



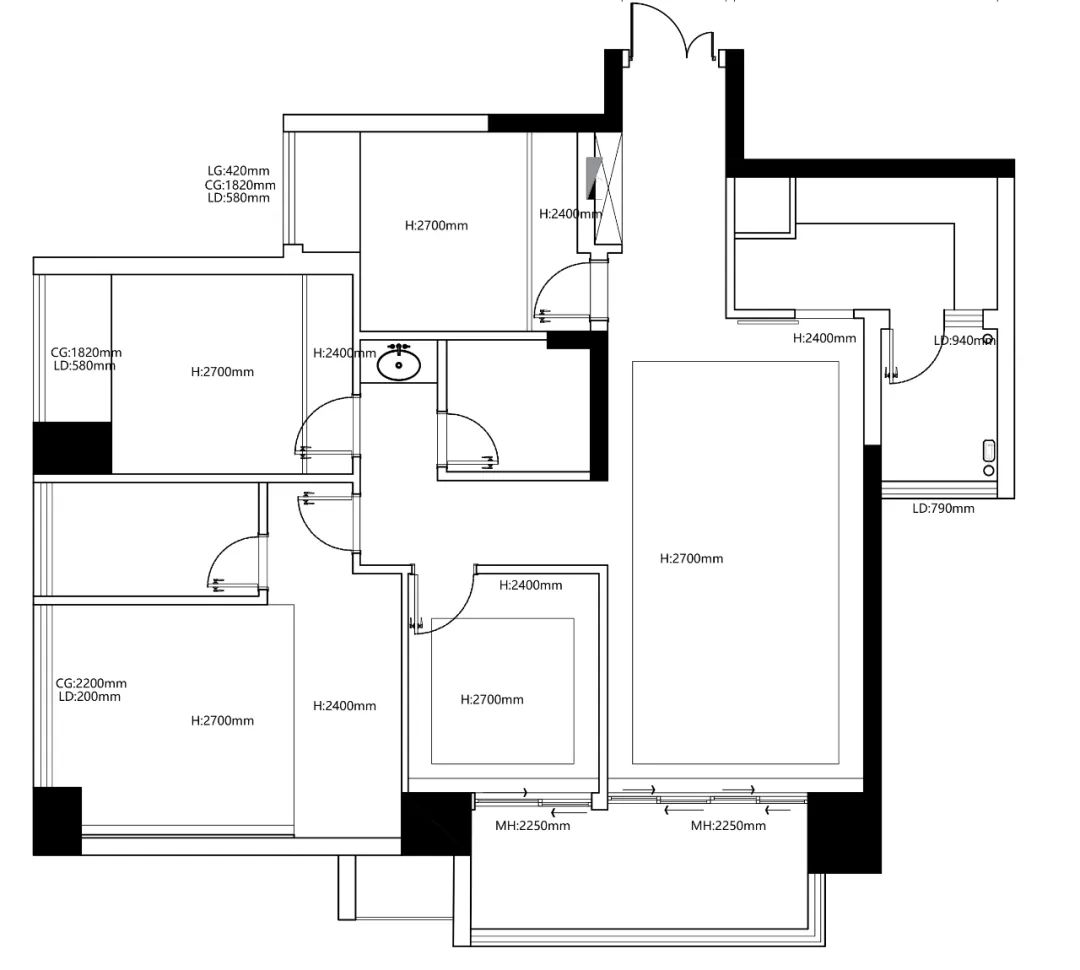
-原始结构图-

-平面布置图-
空间的视觉呈现是对生活的主观意识展现,在其克制、内敛的表象之下,蕴含着兼收并蓄的质感与能量,以及丰盈的精神内核。


以优雅的线条与材质铺陈启始语境,倾注自然塑型的明净场域,从视觉享受至实用功能的构筑魅力。

将生活状态镌刻在时间的褶皱里,让场景叙述故事,还原理想与温度,细碎与丰盈。在光的聚合散落中悦归栖居,浪漫婉转间,优雅与仪式感萦绕不息。



-原始结构图-

-平面布置图-

空间不止于动与静,在经历格局的洗礼后,空间的互动性、采光度、通透性随之提升。而弧线和曲度的立面美学表达,导向畅达的开放性,和更具包裹感的圆融尺度。


为业主把理想的家实现,真真实实呈现在眼前,业主的欣喜以及对未来生活的期待,对我们来说就是最好的回馈。虽然本篇只分享了部分改造及效果图,但是家的全貌,后期会以推文的形式与大家见面,正片待发布,敬请期待…