
本案业主一对年轻夫妻,男业主之前在上海工作生活 ,对于上海小洋楼那种复古的气质情有独钟,女业主也喜欢有些复古的基调。所以我们一拍即合,在前期沟通方案的时候就已经把设计包括软装的基调确定好:要把文艺复古的氛围路线进行到底。


◎ 原始结构图

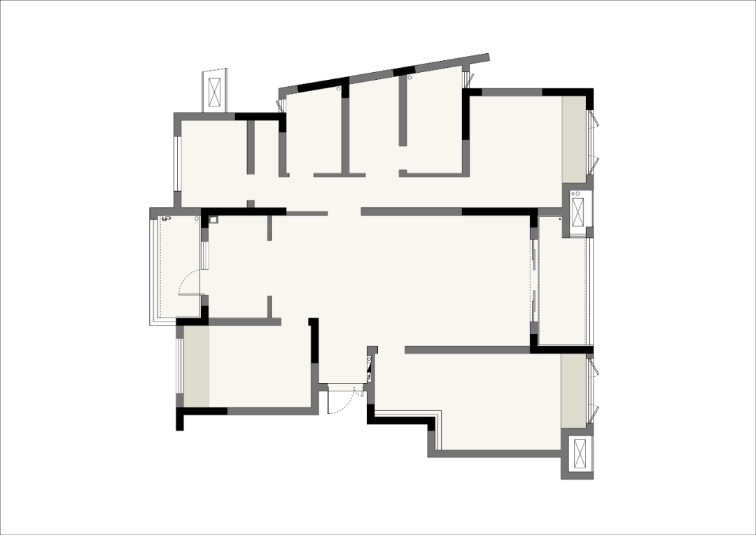
◎ 平面布置图
改造主要有以下几点:
1:打开客厅背后卧室的墙面,更改进屋后人流的动线,利用原有的卧室过道,变成了一个入户储藏室。利用左边的墙还有与客厅衔接的地方做了一整面L型的转角鞋帽柜,并设置了坐着换鞋的区域。
2:把原有厨房的位置向外移动,增加了厨房的可操作空间,并且扩大了餐厅的区域,增加西厨操作台和岛台的位置。
3:把餐厅背后的小卧室一份为二,利用三分之一设置了一个小小的洗衣房,满足传统晾晒的需求;剩下的三分之二则是打开和餐厅联动做了一个可开放可封闭的书房区域。
4:把主卧过道的位置变短,让一部分给公共区域。把公卫的台盆外置,并且重新调整公卫和主卫之间墙体的关系,让空间利用更加合理。
5:主卧室的衣帽间和卫生间完全打开合并,做了一个三分离的卫生间。




一个理想居所,能让居住的人,感受到生活的生机和诗意。空间自洽随性,带一点复古,温暖而不刺眼,临窗增设木质移动书架摆放雅韵字画与藏书几许,在生活感的场景里聊话日常,且驻,且思,贪欢半响。


客厅作为家人之间互动最多的场景,运用自然光、棉麻瓷器与木材间的精妙互动,将自然的恩赐打造为生活的叙事诗。光影于百叶帘下缓慢踱过,也映在木与麻的天然纹理之上,自然之意持续为室内的氛围锦上添花。



在简洁底色之下,品质与细节并行,干练的线条与柔和的弧面产生碰撞,空间的层次得以充分感受。镂空的矩形框窗觅独一份雅趣,让门厅与客餐区的通连拥有相互借景的呈现。





材质的碰撞,肌理的纹路,在细微处不动声色的包裹空间,一面导向对生活的质感追求,一面释放自然自洽的空间氛围,而明暗与光影叙写酝酿其间的故事。




把原有厨房的位置向外移动,增加了厨房的可操作空间,并且扩大了餐厅的区域,使得餐厨区域都能更好的利用起来。餐厅区域还增加了西厨操作台和岛台的位置。这样平时喝咖啡,烤面包,都有更多的灵活空间可以结合使用。


外置台盆的黑色画框镜子搭配银色复古龙头,也让洗漱空间变成了一个想让人驻足观赏的景色。开放书房的弧形书架,搭配木纹的隔板,复古端庄的感觉将悠然静谧留给某一刻的独处心境。






佳境隐序,围一方天地。主卧延续复古气质,大胆又浪漫的红丝绒加复古罗马柱的设计,搭配复古的烛台造型吊灯,丰富细腻的肌理唤醒空间中的人对浪漫和时间的感触。



纯粹架构下的留白,归于个人喜好的当下表达,更伏笔于未来的生长,在人与时间的共进里,谱写出更多元丰盈的可能。