十二分定制打造 · 领地观云府 | 涌动的蔚蓝情绪
2024-07-16 / 案例合辑 阅读:0次 作者:重庆十二分装饰

图片


“凡是自然的东西都是缓慢的,太阳一点点升起,一点点落下,花一朵朵开,一瓣一瓣地落下。稻谷的成熟,都慢的很。那些急骤发生的自然变化,多是灾难,如火山喷发、飓风和暴雨。”
"All natural things are slow. The sun rises and sets little by little, and flowers bloom and fall one by one. The ripening of rice is very slow. Those sudden natural changes are mostly disasters, such as volcanic eruptions, hurricanes and rainstorm."

—毕淑敏《星光下的灵魂》




Holding you, Holding me,Cigarettes After Sex



项目地址_Location       项目风格_Style

领地观云府               现代复古主义

项目面积_Space               

220㎡

硬装设计_Project Designer

十二分空间设计- 郑雨

软装陈设_Soft-fitting Designer

桓墅软陈空间设计

项目类型_Project Mode 

全案设计


图片


图片



与业主的缘分,相识于他们妹妹家的案子完工拍摄,分别见过两次面。最初找到我们是针对一套房子的旧房改造,买了新房后,直接就调整方案,做现在这套观云府的设计。这套第一次见面还是在和地产商家签约的时候,业主现场签约,设计师在房子现场测量,默契的进行着。

跃下的房子,只有业主两人居住,他们对居家环境的功能、品质、审美有很高的要求,需求是养老房,想要空间大气以及上下楼梯舒服宽敞。



图片

图片

图片






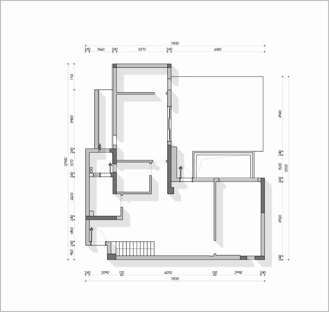
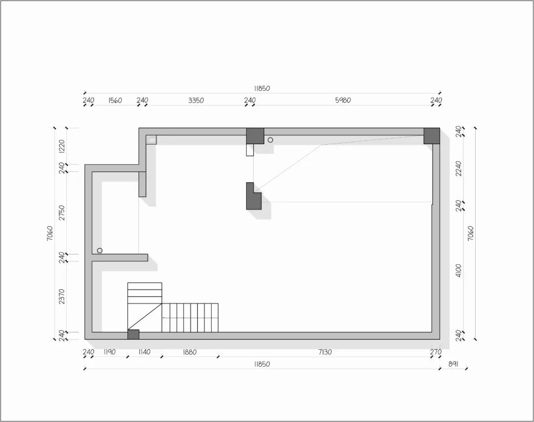
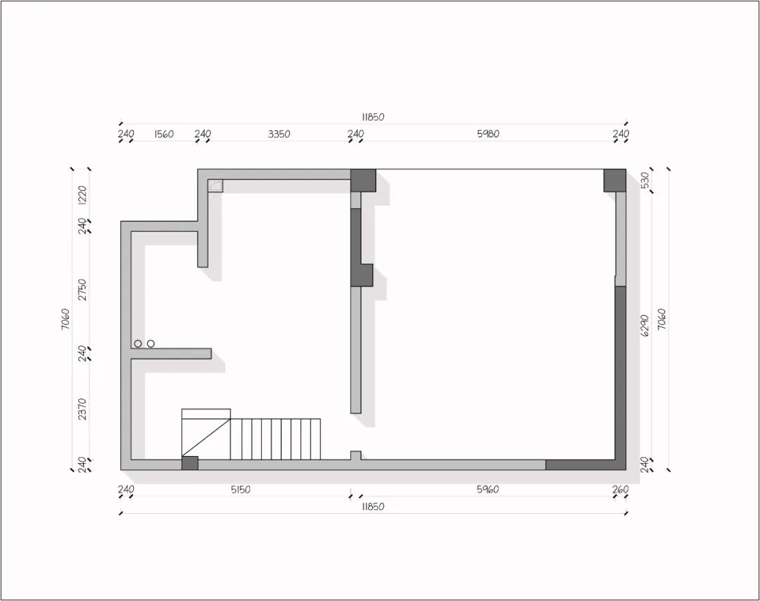
[上下滑动,浏览房屋户型结构]



原本的户型一层是两室两厅,楼梯下去的位置刚好在入户进门的位置而且楼梯又窄又陡非常的不利于上下楼梯的安全性。客厅空间偏小,卧室也无法满足想要衣帽间的需求。设计上把楼梯改到原本一楼的卫生间位置,加宽楼梯宽度和梯步,这样楼梯在一个中心位置,更好的链接楼下两层的空间,一楼的空间把厨房改成了开放式厨房,厨房空间偏小,往生活阳台外面延伸了长度,把西厨空间分散到原本楼梯的位置。做了餐岛一体的布局,把厨房电器考虑在西厨,中厨操作台面增加,与独立完善的厨房贯通,契合生活与社交需求,完美成就了家庭生活与社交欢聚的主场。


图片


图片



图片

每个人都对新时代有无限的希冀和渴望,当我们尽情感受过生活的欢愉之后,更需要静下心来,平复心情,进行自我疗愈,在平和安宁之间找到希望和动力。


「 蓝色 涌动的是思维 是灵魂 是黎明来临前的寂静  是浩瀚大海的波涛  是沉默力量的底色  是人类不了解的谜底 」



图片


空间松弛灵动,将自然之风与当代复古装饰融合,踏入空间便唤醒情感共鸣,归家的温度,生活的品味与质感,如同那一沐春风,轻抚过耳,意犹未尽。


图片

图片


浓浓的“松弛、雅致”氛围;电视背景墙视觉上提升层高的同时还有一种延伸感,利用弧线造型柔滑棱角分明的尖锐传统墙体,心理上给人一种安全感。



图片

图片

图片


图片

客餐厅的设计上,“共享空间”成为设计重点,打破区域之间的隔断,使得整个区域可以成为与家人、好友,零间隙交流和畅谈的社交场所。看似与客厅融为一体,却又恰到好处地独立于整个空间,多样化的使用场景,足以满足现代家庭日益增长的需求。



图片

图片

图片

图片


在光影的作用下更能体现美感,通过配色以及材质上深+浅、轻+重的比例调配,使空间层次似写意画的笔触一般,在"宣纸”上晕染开来。



图片

图片

图片


负一楼打造了一个完整的主卧套房,原本的采光井给主卧室完整的光源,练瑜伽,看书悠闲之地。当清晨的第一缕阳光透过天井洒进房间,整个空间都被染上了一层金黄。随着光线的流动,平静安宁的氛围在室内蔓延开来。



图片

图片

图片

图片

图片

图片


外置浴室柜搭配梳妆台以及次净衣区,往外连接步入式衣帽间,用实木贴皮的玻璃隔断打造了一个电视墙。把原本的楼梯改到了靠厕所那边,变成了独立的楼梯间。

图片

图片


通过楼梯的盘旋转折,上下三层空间被巧妙地串联起来,犹如一条优雅的纽带穿梭在屋宇之间。无需过多繁复的装饰,便能营造出一种难以言喻的优雅氛围。

快捷导航
联系我们
十二分空间·生活集:江北区喵儿石创艺特区37栋3楼3-1

十二分空间·概念馆:渝北金渝大道106号金山意库12栋1层
桓墅空间艺术设计机构:渝北区金渝大道108号金山意库12栋1层3、28号
岭众联合-田艾灵设计:渝北区金渝大道108号金山意库12栋1层2、29号
Copyright © 2024 十二分装饰版权所有 渝ICP备18016191号-2

渝公网安备 50010502003345号