
“我们受罗盘与风声的指引,穿越幽谧的草林,绕过无计可施的灌木丛,在山麓边嶙峋的石间找到淙淙流过的小溪,太阳光轻巧地透过叶片的缝隙直垂落下,溪水清澈、温柔、和煦。”Guided by the compass and the sound of the wind, we traversed through the tranquil grasslands, bypassed the helpless shrubs, and found the murmuring stream flowing through the rugged rocks at the foot of the mountain. The sunlight lightly descended through the gaps in the leaves, and the stream water was clear, gentle, and warm
:
家是承载每个人情感的地方,设计的神奇力量就是将它打造为可以宜生活、宜畅想、宜回忆之地。但是,从设计方案到执行落地之间往往存在着漫长曲折的过程,需要设计师与业主之间不断沟通交流,它不是一个人纯粹的精神行为,甚至不是完整的创意生发,它是在设计师与业主不断磨合的过程中,最终实现关注到居住在内的主人各种诉求与美感喜好平衡的家。Home is a place that carries everyone's emotions, and the magical power of design is to create it as a place that is suitable for living, imagining, and reminiscing. However, there is often a long and tortuous process between the design scheme and its implementation, which requires continuous communication and exchange between the designer and the owner. It is not a pure spiritual behavior of one person, nor is it a complete creative development. It is a process of continuous adaptation between the designer and the owner, ultimately achieving a home that pays attention to the balance between the owner's various demands and aesthetic preferences inside the residence.
“如何塑造家的灵魂”,设计师团队提到最多的词语是“需求”。挖掘、梳理业主的需求,并用室内设计的手法充分表达业主所释放的需求。
The most frequently mentioned word by the design team on how to shape the soul of a home is' demand '. Explore and organize the needs of homeowners, and use interior design techniques to fully express the needs expressed by homeowners.
之初关于喜好、关于要求……她也是茫然还不清晰的。通过田艾灵专业的分析调性喜好精准,但是每个家人个体的细节需求,是一次又一次磨合调整逐步形成定稿的。有欢笑快乐,也有互相辩论;有殷殷期待,再到信任倍加。
At the beginning, she was also confused and unclear about her preferences and requirements. Through Tian Ailing's professional analysis, the tone preferences are precise, but the detailed needs of each individual in the family are gradually finalized through repeated adjustments and adjustments. There is laughter and joy, as well as mutual debate; There are earnest expectations, and then trust is multiplied.

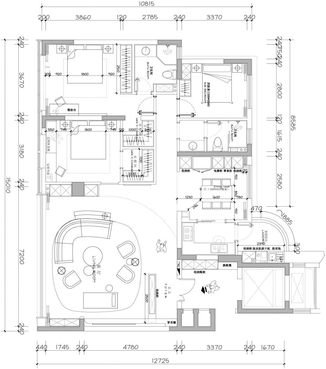
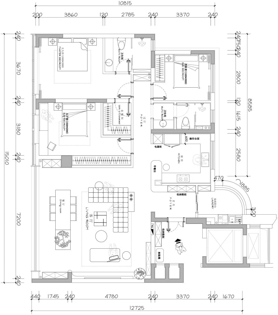
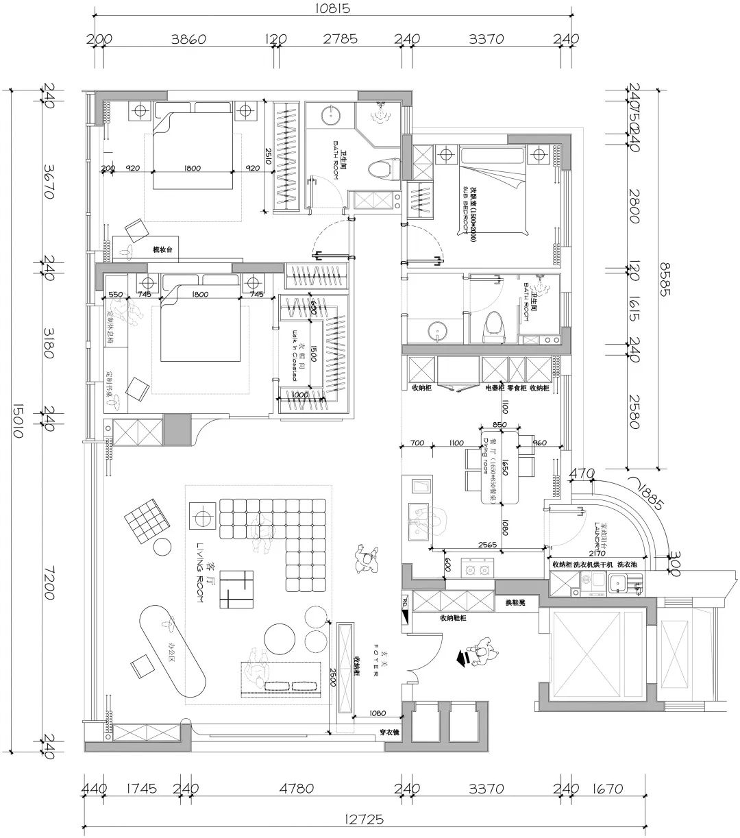
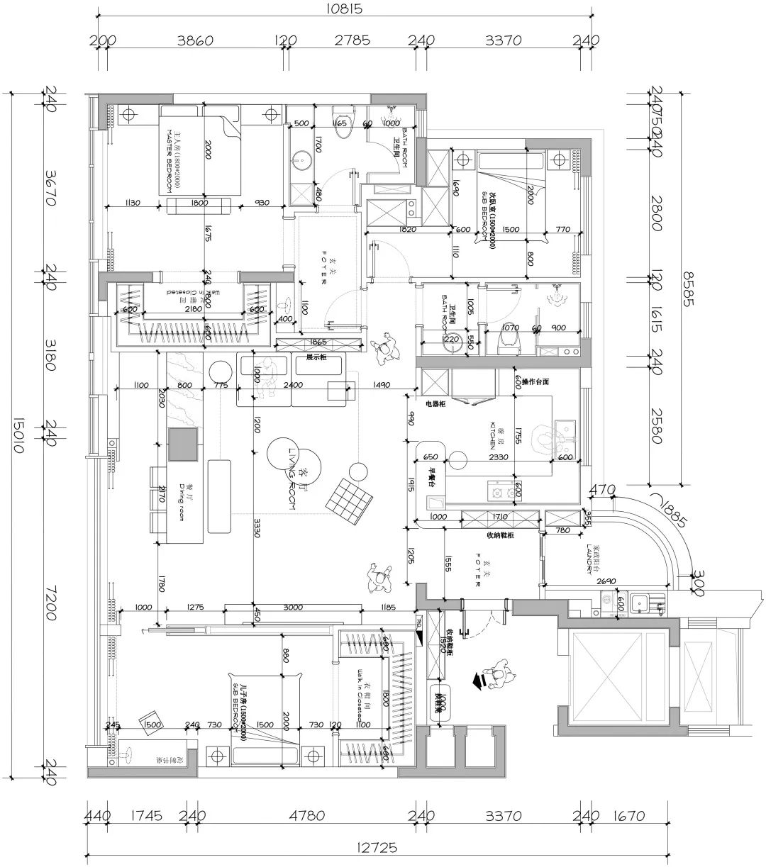
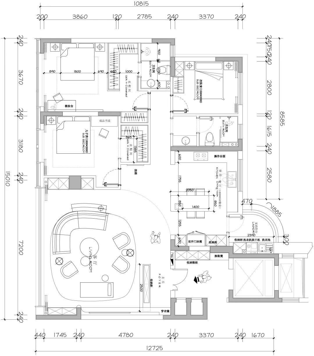
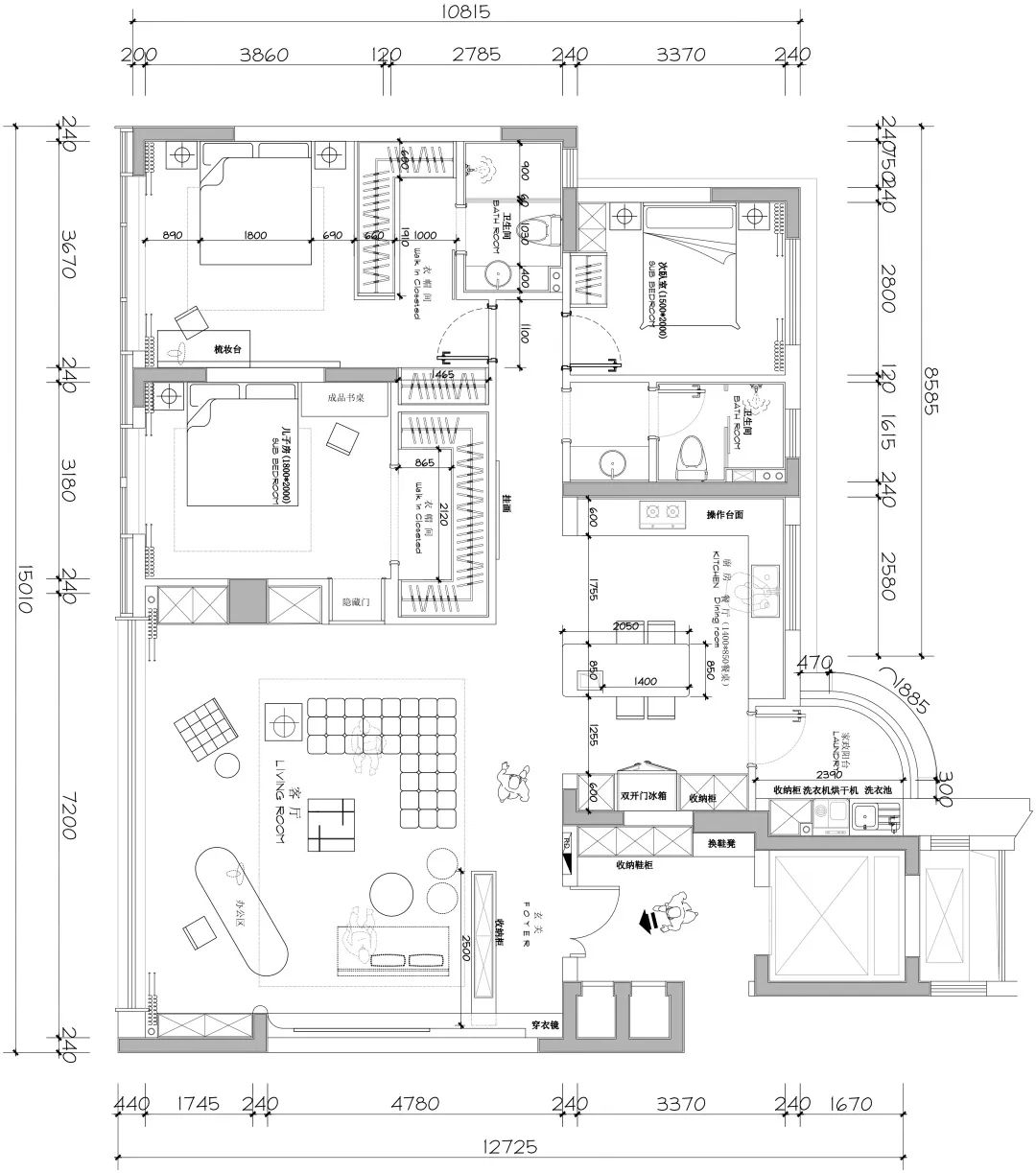
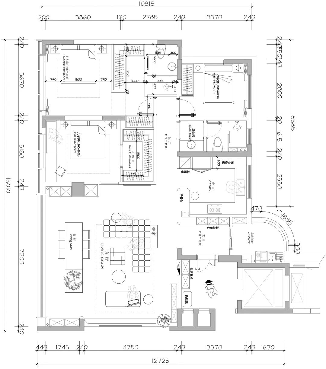
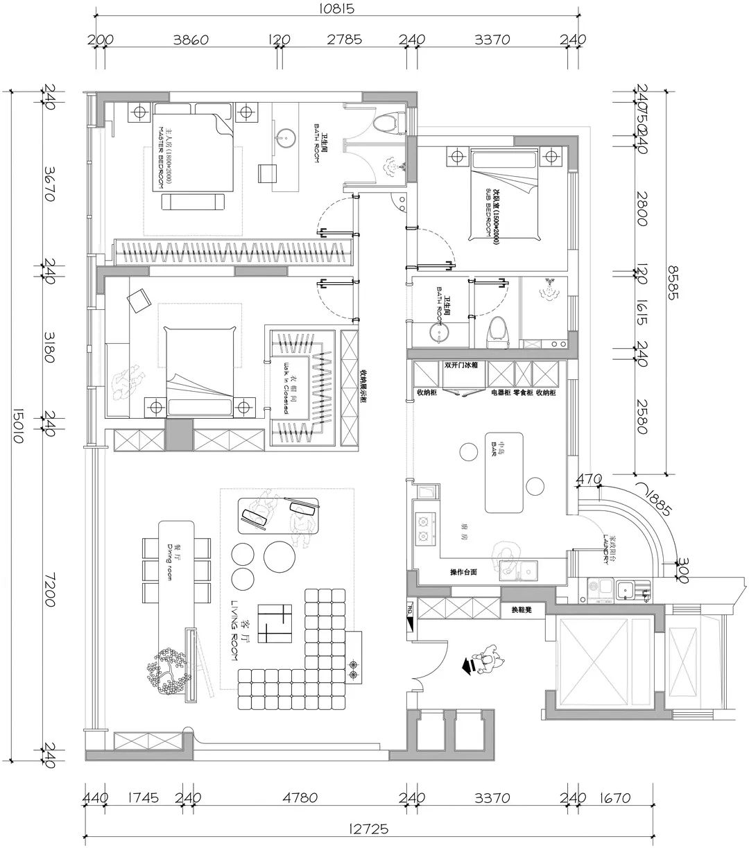
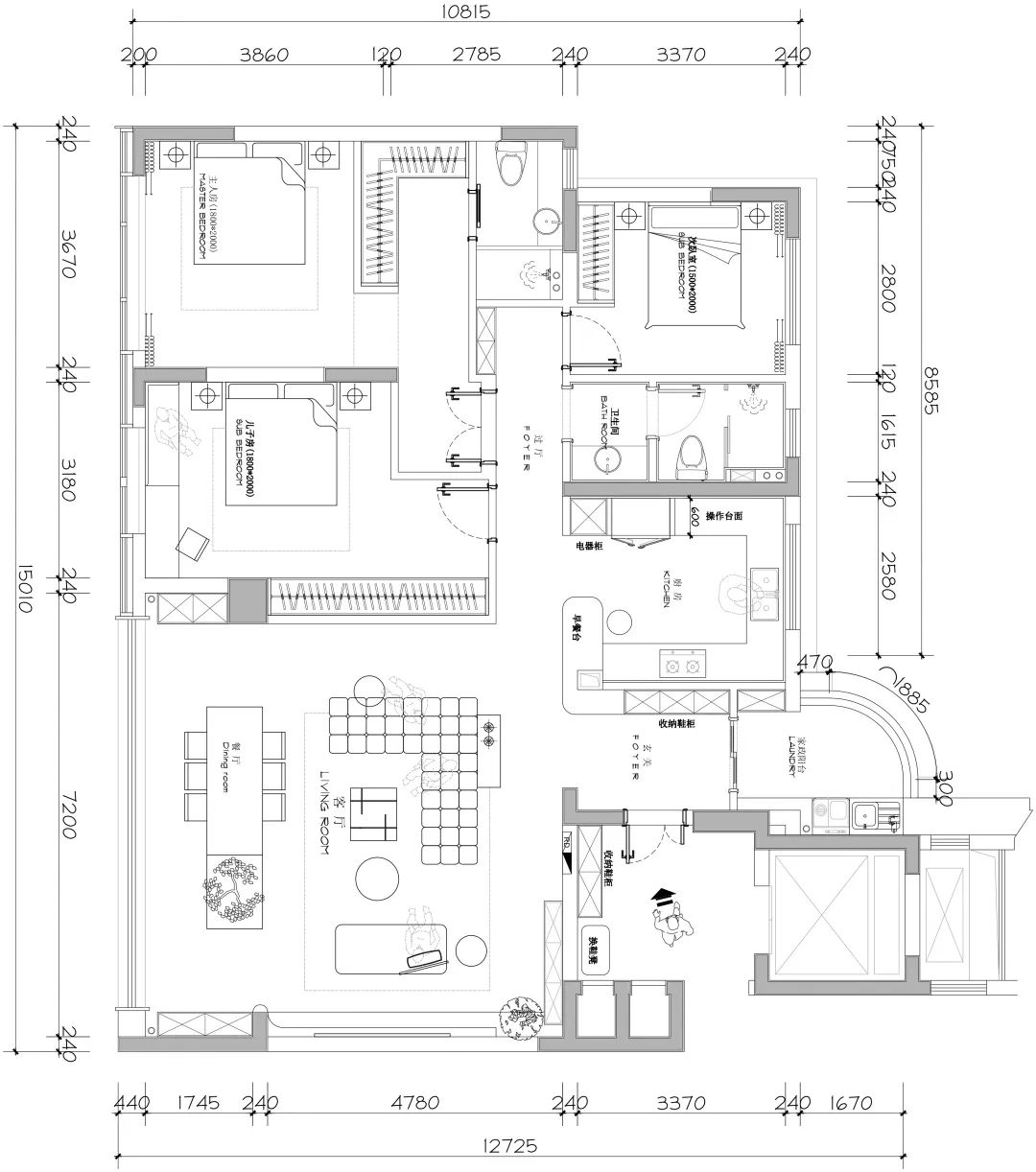
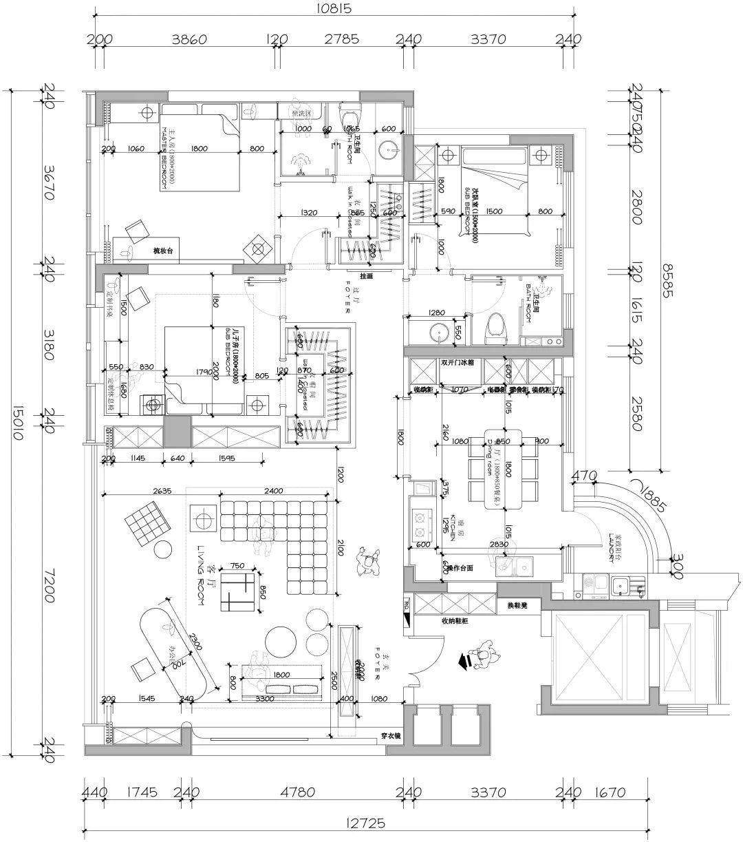
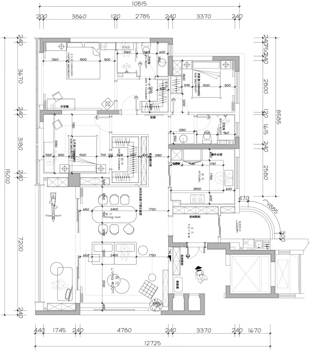
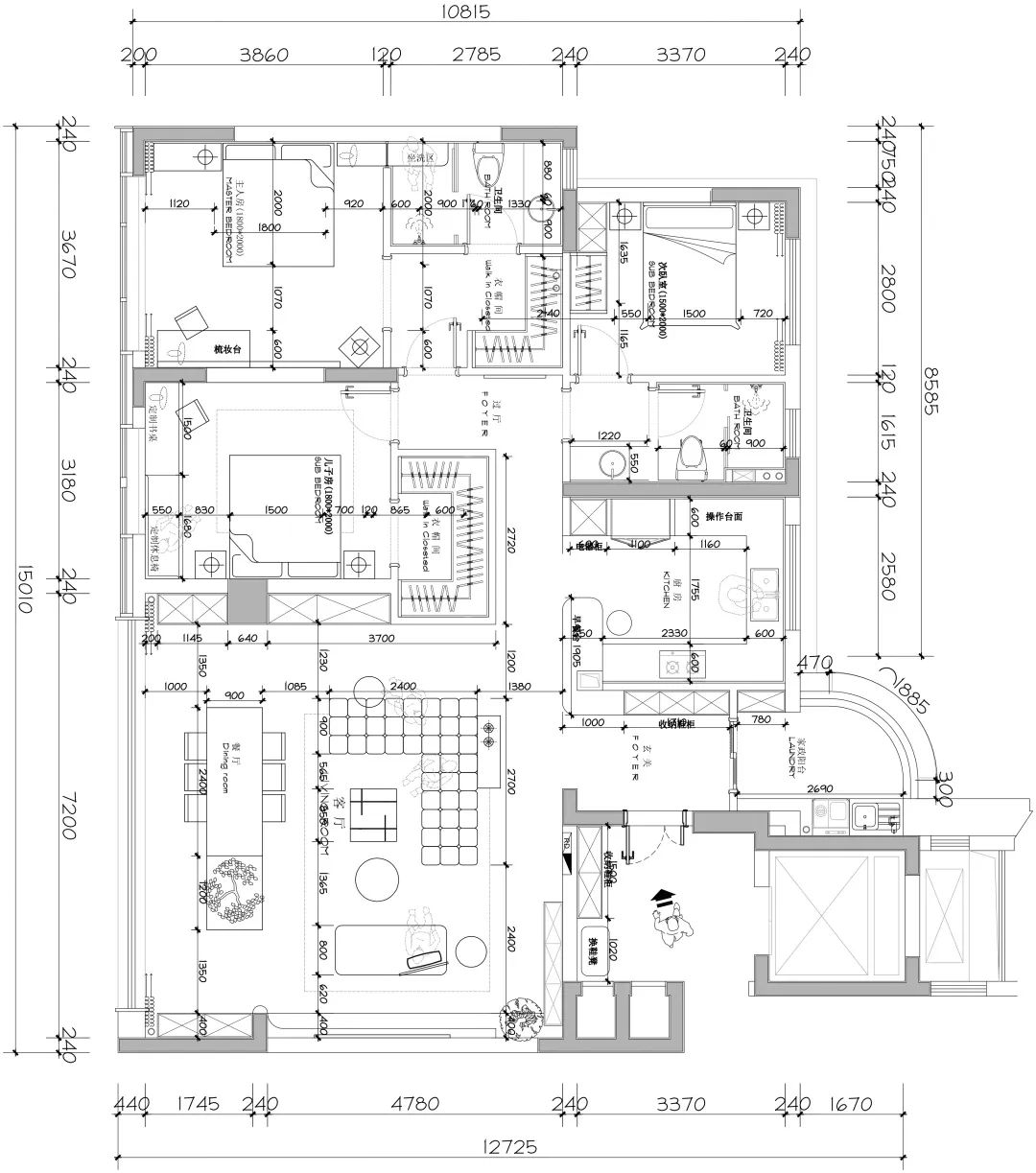
也许对于我们设计团队来说接近二十稿的调整是第一次,但正因为我们明白自己眼里的差不多,却是关乎业主朋友居住生活其间可能会纠结一辈子的点,所以保有设计最单纯的初衷,我们去尊重配合。这次分享这一套案例的细微过程,也给大家分享出同一户型数十种布置的多变可能性。Perhaps it is the first time for our design team to make adjustments close to the 20th draft, but precisely because we understand that what we see as similar is a point that may be difficult for homeowners and friends to live in for a lifetime, we maintain the purest intention of the design and respect and cooperate. This time, I will share the subtle process of this case and also share with you the diverse possibilities of dozens of layouts for the same apartment.
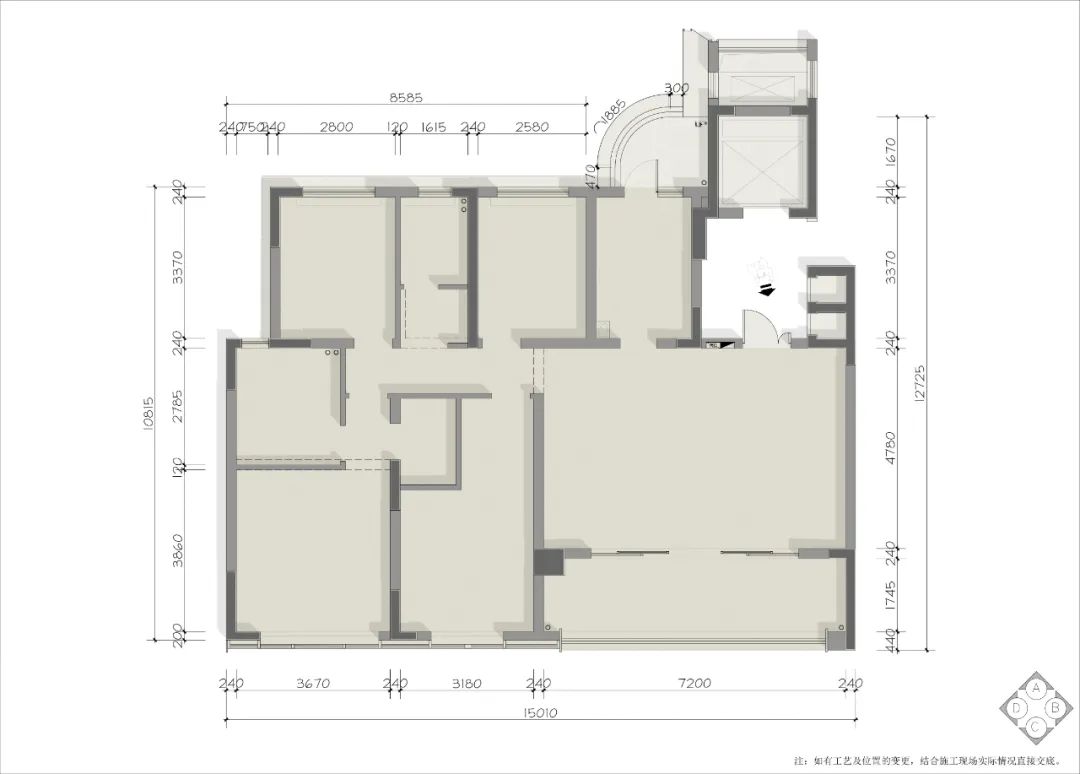
1、勘察原始户型,入户门直通阳台,形成不了洁净和脏污分区,同时从风水间隔上不是太好;生活阳台过于短小,晾衣功能施展不开;原始厨房和餐厅位置尺度狭窄,影响体验感和收纳感。Investigating the original layout, the entrance door leads directly to the balcony, which cannot form a clean and dirty partition, and the feng shui interval is not very good; The living balcony is too small, and the function of drying clothes cannot be fully utilized; The narrow scale of the original kitchen and dining room location affects the sense of experience and storage.2、一梯一户的结构,调整入户进门位置,形成独立玄关;优化厨房和生活阳台的位置;纳阳台入室内开阔多功能交互大厅。将标准户型通过构建,打造出动线畅通、功能妥贴更当代融合可变的新空间表达室内环境。The structure of one elevator and one household, adjusting the entrance position to form an independent foyer; Optimize the location of the kitchen and living balcony; The balcony leads to an open and multifunctional interactive hall indoors. By constructing standard apartment layouts, we aim to create a new space that is seamlessly integrated with modern and adaptable functions, expressing the indoor environment.3、基于业主的风格和喜好,调整家庭成员更细微的使用感,家人之间各自的柜子、收纳等细节反复斟酌考虑,让户型的合理性更适配于业主及家人的使用。Based on the style and preferences of the homeowner, adjust the subtle sense of use of family members, and carefully consider the details of cabinets, storage, etc. between family members to make the rationality of the layout more suitable for the homeowner and their family's use.4、前期业主想把厨房餐厅融入一起,但考虑到以后生活情况,设计师团队告知业主缺少收纳性,餐桌面将成为杂物面,但在满足业主心愿下,做了几版厨房餐厅一体的效果图。在与业主充分交流讨论后,餐厅除了用餐外,也可以是以后与朋友对坐聊天比较有氛围的地方或是与家人交流的场所。将餐厅多功能交付的概念以及与大客厅融入一体来设计,从而得到各个功能区的最佳体验。In the early stage, the owner wanted to integrate the kitchen and dining area together, but considering the future living situation, the design team informed the owner that there was a lack of storage space, and the dining table would become a miscellaneous area. However, in order to meet the owner's wishes, several versions of the integrated kitchen and dining area renderings were made. After sufficient communication and discussion with the owners, the restaurant can not only be a place for dining, but also a more atmospheric place for sitting and chatting with friends or communicating with family in the future. Design the concept of multifunctional delivery in the restaurant and integrate it with the large living room to achieve the best experience in each functional area.设计过程分享详情可点击此链接:壹号院 · 设计是回归生活的创意
为了将设计与业主的需求合理融合,岭众联合-田艾灵团队进行了大量修改和优化,反复的磨合碰撞,让同一户型拥有多种可能性,一切仅仅是为业主需求出发。让业主可以感觉到我们精益求精的用心,专业的设计水平加上将心比心的态度一定能收获业主的肯定。In order to integrate the design with the needs of the owners in a reasonable way, Lingzhong United Tian Ailing team has made a lot of modifications and optimizations, repeatedly adjusting and colliding, making the same unit have multiple possibilities, all based solely on the needs of the owners. Let the owners feel our dedication to excellence, professional design level, and empathetic attitude, which will definitely receive recognition from the owners.只有融入业主真切的需求以及设计师阅历的有血有肉的创作,才会赋予住宅室内设计“关怀、健康、人文”的灵魂,使其发挥“以人为中心”的功能。Only by incorporating the genuine needs of the owners and the vivid creativity of the designer's experience, can the soul of "care, health, and humanity" be endowed in residential interior design, enabling it to play a "people-centered" role.

-最终确认效果图-
空间的尺度、功能动线,合理贴合居住者,宜居才能决定生活品质的高度。围绕家庭结构的需求出发,从社交、会客、仪式、私享、乐享,细到业主需要一面锻炼时的全身镜,又不想非使用期间可见,那么我们就去实现平时隐藏用时可见的细节;古筝雅兴,弹时置于多功能集合长桌,不用时置放于预留位置成为空间表达………为屋主构建享受岁月静好的生活空间,让生活的趣味多了一些鲜活。The scale and functional flow of space should be reasonably aligned with the residents, and livability can determine the height of the quality of life. Starting from the needs of family structure, from socializing, receiving guests, rituals, private enjoyment, and entertainment, to the fact that homeowners need a full-length mirror for exercise and do not want it to be visible outside of use, we will achieve details that can be hidden and visible during normal use; Guzheng is elegant and lively. When playing, it is placed on a multifunctional long table, and when not in use, it is placed in a reserved space to express space... It creates a living space for homeowners to enjoy the tranquility of time, adding some vitality to the fun of life.一所好的住宅空间,不仅要实现生活功能上的舒适,更需要契合业主的精神需求。在身处都市信息繁饶的时代下,需要的是回归内心的片刻静谧。本案设计以空间与人的情感链接为主导,以最大限度释放空间,引入自然舒展情绪,为家传递出理性而有温度的空间美学,踏入家门即刻回归内心的平静。A good residential space not only needs to achieve comfortable living functions, but also needs to meet the spiritual needs of the owners. In the era of abundant urban information, what is needed is a moment of inner tranquility. The design of this case is dominated by the emotional connection between space and people, aiming to maximize the release of space, introduce natural and emotional relaxation, and convey a rational and warm spatial aesthetics for the home, returning to inner peace immediately upon entering the house.
岭众联合-田艾灵设计
创意就是创造空间与人的记忆
用泛艺术化的设计理念
构造自然、艺术、优雅的平衡空间美学

Elegant, harmonious, refined, balanced and comfortable






一步一景,透过室外光照与人与的互动,在空间中产生清风弄清影般的意境,通过场景化营造,营造坐看绿意、静听风情的快意体验。
Step by step scenery, through outdoor lighting and interaction with people, creates a refreshing and shadow like atmosphere in the space,Through scene based creation, create a pleasant experience of sitting and watching the greenery, and listening to the scenery quietly.
︾
02. ART

Artistic innovation explores aesthetic value and cultural attributes





生活的仪式感将诗意典范一一汇聚,不刻意强调一形一物,但能延伸出平和的宁静致远,看着窗外自然风景如同甘解股滋养心灵,于此共享生活之外的情调趣味。
The sense of ritual in life brings together poetic exemplars one by one, without deliberately emphasizing one form or object, but can extend a peaceful and far-reaching atmosphere. Looking at the natural scenery outside the window is like a sweet and nourishing feeling, sharing the mood and fun outside of life.

The natural internal and external interaction
of light captures the qualitative temperature







女主人求雅静、细节品质,也懂得尊重儿子的喜好,块面干净酷的一面给到儿子房。
The hostess seeks elegance and attention to detail, while also respecting her son's preferences. She offers her son a clean and cool side of the room.
儿子房浅调木墙、柔软布艺,冷峻的男子汉气质又不乏温暖。在线条、造型与配色的对比中弱化外在的奢侈,用克制与优雅的姿态增添了室间底蕴与品质。
The son's room features shallow wooden walls and soft fabric, exuding a cold and masculine temperament while also being warm. Weakening external luxury in the contrast of lines, shapes, and color schemes, and adding restraint and elegance to the interior and quality of the room.



设计链接空间与自然,旨在构建返璞归真,让光、木、植物构建静谧、质感、放松的居住感受,以美学兼具功能的思考,满足家庭成员不同的需求模式,描绘未来幸福生活的蓝图范本。
The design links space and nature, aiming to create a return to simplicity, allowing light, wood, and plants to create a peaceful, textured, and relaxing living experience. With aesthetic and functional thinking, it meets the different needs and patterns of family members, and depicts a blueprint template for a happy future life.
项目信息
Information
━
Project Location:Chongqing·MeiguiyuanDesign Company:Elin Imperial Institute of DesignArtist Director:Erin TianDeepening Scheme Designer : Yu JunlongSoft Chen shooting set :YangxiDecoration Design:HERTRUE ART DESIGN
施工单位 | 十二分装饰
Construction Unit:PERFECT DECORATION
摄影团队 | 边界人摄影
Photography Team:BIJISPACE

田艾灵(Erin Tian)
—
岭众联合-田艾灵设计
设计主理人|艺术总监
Elin Imperial Institute of Design
Design Manager|Art Director
十二分空间设计&桓墅软装艺术
创始人 | 艺术总监
PERFECT DECORATION&HERTRUE ART DESIGNFounder|Art Director
︾
泛艺术化设计理念,由田艾灵提炼而出:不以具体风格论来构思设计思路起点的空间设计理念。
它主要表现为把中西、古今的艺术经典,借用设计技术语言,运用进入实用空间设计里;消融艺术与人们实际生活影响的绝对界限,保留艺术不用很多语言就能触动情绪的基本精神气质,追求不随潮流迭代的审美持久性,构建当代人与空间环境更直接的感官关联触达。做真正为人所能顺畅使用,引起艺术、情绪共鸣的设计!
The pan-artistic design concept is refined by Tian Ailing: a space design concept that does not use specific style theory to conceive the starting point of design ideas.
It mainly manifests itself in incorporating Chinese and Western, ancient and modern art classics into practical space design by borrowing the language of design technology; dissolving the absolute boundaries between art and people's actual life, retaining the basic spiritual temperament of art that can touch emotions without using many words, and pursuing The aesthetic durability that does not follow the iteration of trends builds a more direct sensory connection between contemporary people and the spatial environment.Make designs that can truly be used smoothly by people and arouse artistic and emotional resonance.