
:
项目地址 | 蓝城两江 · 田园牧歌
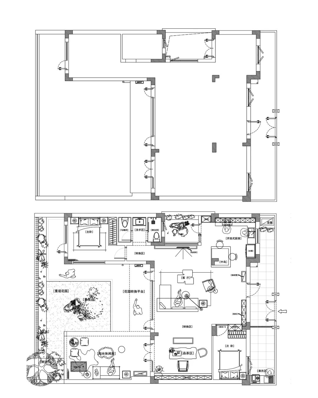
项目面积 | 室内110m² + 花园50m²
设计机构 | 十二分空间设计
主创设计师 | 王建
团队设计师 | 杨良雪
软陈设计 | 桓墅软陈设计 · 生猛

建筑本身就极具东方美学特性,庭院、屋檐、坡屋顶、青瓦白墙...自然光穿过植被树木,流入室内,散落的星星点点光斑,汇成了一个具有流动性质的空间。设计师引入“禅”的意境和生活哲学。满足城市人对“古典庭园”中式美学的审美期待,又要满足现代人对空间的便利生活的享受。
形状、材料、触感多样的元素融合空间与自然的关联性,带你进入一种意境和氛围,可暂且放下城市的纷繁复杂,在此自在闲坐,享受慢生活的滋养。


中庭花园和室内空间业主委托设计师整体设计,因此我们考虑整个建筑的结构形态和方向,由外而内,先从庭园设计入手,由花园过渡到室内,把自然引入室内,作为室内空间的前景。


庭园的设计是浪漫的、富有想象力的...植被树木的高低错落层次分明,隐隐约约的含蓄氛围,走廊和院子的穿插相融,沉醉在自然美学晕染的空间里。一处茶亭,一隅宁静。邀二三知己煮茶、解语,把平淡日子过成超然。










以“淡雅节制、自然素美”,勾勒超然物外的空寂感,让人的身心沉浸在纯净、朴实的诗意里,空间的通透性,与自然近乎融为一体,阳光尽情地撒欢,静坐于此冥想,连呼吸,都是自然的味道。





室内书房茶室区做了整面到顶的书架,与吊顶造型结合形成一体,书架未做木纹背板留出了原墙面,减轻了大面积书架的厚重感,也增加了空间的通透度,推开书房对开门与户外茶亭相连,形成一体的互动空间,远处山景似乎也近在眼前,独处或是好友小聚都十分惬意。



主卧位于庭园另一侧,我们打通了与中庭花园的墙体换成了落地大玻璃,满眼的绿色映入眼帘,素年锦时,岁月静好。



整个空间皆以素净为基调,朴实的原生态材料质感,伸手便触得到自然,绿植姿态洒脱,抬头可看天空白云无限延展,窗框里的大自然是时刻流动的。
—平面户型图—
