

本案是套内面积为142㎡的四居室,家庭成员为年轻的爸妈+宝宝+两只猫咪。空间定调为法式,以低饱和色与自然材质为主, 不做过度装饰,雅致中自带慵懒情调。
刚接触时,女业主才怀小宝宝,有过一次稍显遗憾装修经验的她,对这套改善型住房充满了期待!在逃离喧嚣和不确定的外界,希望在这个家里拥有和家人相处自在的空间。
标准的四房横厅户型,3+1的房屋需求,使得结构上不会有太大的改动。我们力求为屋主打造一处随性自在的居所,一切以他们的习惯和喜好展开。

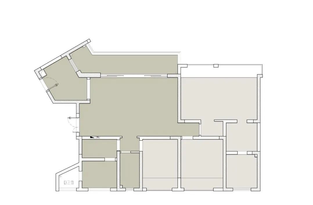
-原始结构图-

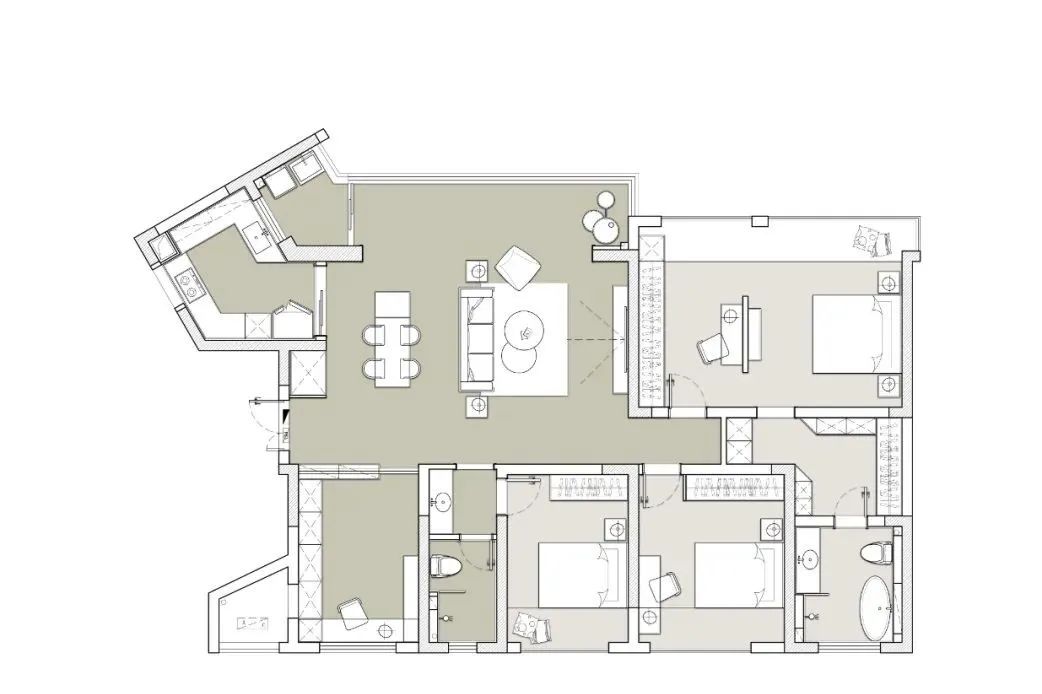
由于有两只猫咪,也为了未来的宝宝和猫咪有更大的活动空间,所以将大阳台套进客餐厅,增大空间感和使用感;入户处的房间不只是单纯的书房,更是多功能空间,作为鞋柜跟公区储物柜的补充;6m开间的主卧,稍显宽敞了点,于是通过造型处理成半隔断,增大了衣帽间功能,让进入主卧更有仪式感,原结构的飘窗不允许拆除,这让我们多少觉得有点遗憾。

白鹭色是一首精巧的诗。
它是西塞山前飘然而去的倩影,掠过柳树枝头的黄鹂;它还是西湖岸上乱莺红树间,夕阳孤吊的沉思。人们向往它的洁白无瑕,感叹它的孤芳自赏,也欣赏长平湖白鹭飞的景致。白鹭色,洁白中透着淡淡的黄色,一丝温暖沁入人心,温暖柔和的色彩抚慰不安的心灵。在以低饱和度色彩为主的配色中,高饱和度的橡木黄与金色组合尤为突出。

互通的客餐厅,释放着自由气质,餐桌加岛台满足一家人平日使用,周围预留出灵活的行走空间,新的生活场景里空间的体系被重构,开始复合更多的需求功能。




落地窗的存在为室内引入充足的光线,柔软饱满的沙发搭配一把亮黄色单椅,空间的艺术美感油然而生,一旁落地灯的造型独特,格调尤佳。顶面流畅素净的线条搭配浪漫的吊灯,显露优雅法式气息。









厨房内开阔的操作台赋予了烹饪这项人间烟火事更多的可能性,平整划一的定制柜体将大型家电设备和厨房杂物都一一归置。




私密的区域将卧室部分还原最基础的功能,把睡眠变成一件极为单纯的事情。奶白色与暖咖相撞,不仅是色彩上的叙事力,也是材质触感之间的跳跃性表现,以极尽温和的方式,过渡到通透又雅致的主卧,建立起一种符合当下的温柔生活指南。


入户处的房间不只是单纯的书房,更是多功能空间,也作为鞋柜跟公区储物柜的补充。闲暇时在这里看看书,安稳沉静的书香消解生活的纷扰,借助一间书房,逐渐传递出屋主浩瀚的精神世界。


浅灰色花纹墙面为洗手间唤醒活力,浴缸的安置驱散困乏与疲倦。
