

遍看秋月春风,心中向往仍旧。在春溪雲庐Trees Villa,当地产资深从业者与高端私宅设计师相邂逅,将会诞生怎样的作品?
本次作品由岭众联合-田艾灵设计机构操刀主笔,以“心之所向”命名,带来城芯之上“向往的生活”,与知名地产大V任骁合作,以她的视角看待居住这件大事,并分享她的生活期待。



岭众联合-田艾灵设计机构(简称EIID),以2002年创立品牌十二分设计的田艾灵女士领衔,二十年经验厚积薄发再创立的子品牌,专注于服务对设计高定制化、对系统落地能力高需求的专属客群。
“自然的、艺术的、优雅的、实用的、健康的、舒适的”,这是岭众的六大关键词。他们认为,去平衡空间美学,不是来自纯粹的堆砌,而是为人所用,不是冰冷而是温情的,而是具有包容性的。以“开创新空间、创意就是创造空间与人的记忆。”为设计理念,岭众擅长用泛艺术化手法打造真正为人所能顺畅使用,引起艺术、情绪共鸣的设计。

△岭众联合-田艾灵设计团队
本次方案由岭众设计的资深设计师刘佳佳主笔,她从业七年,擅长艺术混搭与多种风格设计。她认为每种风格都会有千万种表达方式,不去刻意追求自己,忠于自己,让理性的建筑架构透露出人文艺术的温度。

本案设计师刘佳佳

对一名城市菁英人物而言,家是工作与生活之间平衡点,承载着美学追求与自我心境的安放。岭众联合从嘉宾的实际需求出发,建立生活与空间设计之间的联系,经过艺术性、功能性的考虑,多番打磨下方得这份“心之所向”的方案。




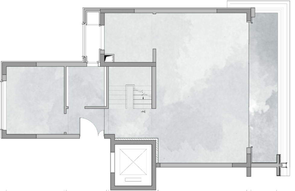
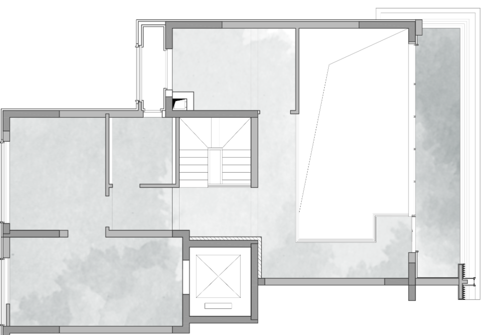
△ 二层原始结构图&平面布置图
这是一件饱含诚意的作品,整体设计上,保留客厅双层挑空,运用6m挑高的通透性,充分接纳阳光与风景,开阔性的空间能够让整个人的身心得到舒展。当进入这个空间,工作带来的压力和烦闷都将得到消除。




如果说一层属于生活,那么二层一定属于心境。了解到嘉宾喜爱阅读的习惯,岭众将二层空间划分为卧室套房与书房两大空间,以旋转楼梯作为动静分区的周转。一侧为睡眠区,保障衣帽间、套卫等私密性。另一层则与露台链接,形成多功能书房休闲区。靠窗可设置花池,阅读间隙更可到露台休憩品茶,与卧室互不干扰。这是属于自我与爱好的空间,亦是向往生活的完满落地。

正如本次嘉宾任骁所说:“家是自由表达情感的空间,家即是世界。”
一层是舒缓身体放松情绪的空间,一层是心灵和喜好逃逸的场域。生活的向往从不拘泥于一面,因此永远值得向往。
Elin Imperial Institute of Design