


原始户型分析:
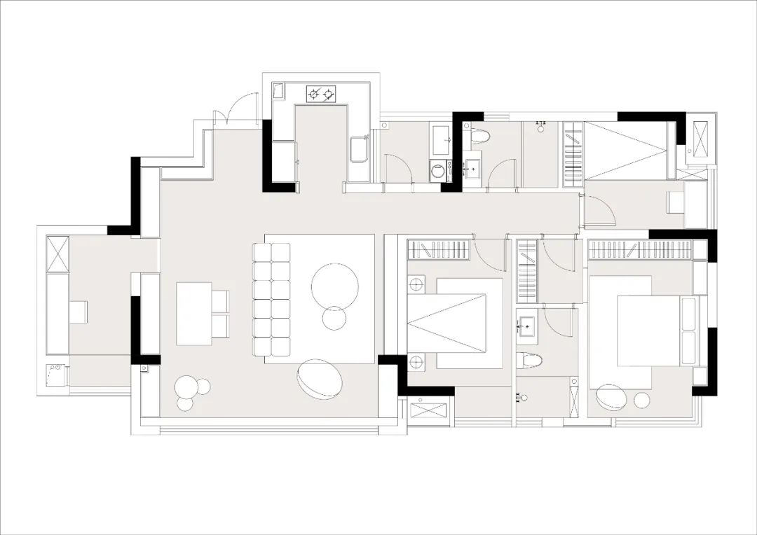
原始户型房间需要全部保留,以满足后续的家庭成员增加后的居住需求,对于公共区域则需要尽量扩大空间。
公区的痛点在于:有间卧室门开在了餐厅墙面的正中间,对于整体视觉来说不是很美观;客餐厅之间横厅的间距不是特别宽敞。

空间改造规划:
1/ 利用整面墙做了卡座,储物柜,玄关柜,隐形门一体的造型设计。卡座可以最大化的压缩餐厅的间距。隐形门可以解决视线上过于零碎的问题,同时把阳台全部纳入室内。这样一来玄关和阳台收纳都得到了满足。
2/ 对于卧室的空间则是进行了布局上的微调:适当压缩了儿童房空间,扩大客厅卫生间;主卧压缩主卫,做了一个进门挂衣区。
3/ 厨房和生活阳台则是保留了原始的空间,满足了业主需要进行传统晾晒的需求。


▼ 现场实景图




空间在一曲一直中寻找着平衡的关系,光影很自然地在家中穿梭流动,像隐于市井中的一处秘境,静谧的氛围与外界喧嚣的车水马龙划分了界限,在宁静中得到彻底的放松与疗愈。

以最低限度的手法,在结构上追求去繁从简自在的空间气度,借用材质分割,将空间浓淡调整、场域的气息与平稳格局一气呵成。客餐厅空间相互独立却又相互融合,并结合侘寂之美,回归基础、简约、随意。

❐ 餐 厅 | diningroom


餐厅注重功能清晰和整洁有序,利用整面墙做了卡座,储物柜,玄关柜,隐形门一体的造型设计形成洄游动线,实现空间最大化利用。



一个自由、鲜活、充满了人居温度的餐厨空间,凝聚着家的人情味,承担起真实亲密的三餐四季。在这里,感受阳光倾洒和餐食愉悦。






书房往往是家中最令人内心宁静的空间,脱离向外的思考,停留在眼下的文字书页,停留在此刻的微风吹拂。


对于卧室的空间则是进行了布局上的微调:主卧压缩主卫,设置一个进门挂衣区,平时也可以把日常外套等衣物放置在这里。

灰粉与白在主卧的拿捏极显功力,白得温柔,粉得清雅,素得自在。床头拼接色块营造肌理感的墙面,沉寂的调性、简单的线调,展现一种充满温润和现代的美,植物的枯枝更是为空间添几分侘寂之感。




