

—
设计构思
Design Concept
如果说,空间设计的展示,是设计师对于文化表达、空间架构和艺术重组能力的展现,那么家的搭配与创造,大概是设计师对于自我内心最本真的剖析与展露。在这个不带杂念、不受他人理念影响的纯粹空间里,倾听、感受、对话,都是基于自己开始——只考虑房间与主人的关系,不过而已。
本案设计前期,岭众联合-田艾灵设计团队针对原始户型重新梳理人与空间的关系,精准划分空间功能及生活动线。设计师巧借外灰空间扩大客厅格局、实墙戳窗借光、开楼梯合适位置引光至负楼层。上下楼层挑空与夹层构建,将曾经黑暗的负楼层释放为主人安于一隅的雅静茶区、品质酒区。所有功能错落合理与美学合为一体,让最后的呈现浑然天成,成就又一个家!
—
氛围示意
Atmosphere of the schematic


风格定位&材质表现
自然主义风格出现于19世纪末英国工艺美术运动时期,以赖特建筑为代表的草原风格别墅成为当时主流风格,他们选用自然材质并强调室内外结合设计,对自然主义进行重新诠释。人文主义的精神内涵以人的“自我实现”为最终目的,推崇人的个性和谐发展,着重强调培养人的整体性、全面性和创造性。
效果图呈现
Renderings are presented
☟

· 请翻转手机,横屏查看 ·



















、
、











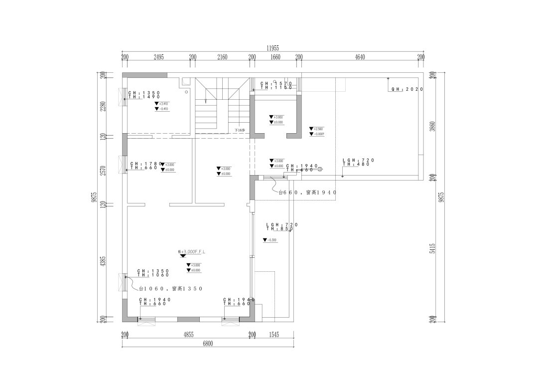
1、负二层入户门内推,减少与车位关系的冲突,来增加入户仪式感和品质感;右侧位置天井直通下来的光线,让光线穿梭渗透进原本闭塞的空间内,让这里成为朋友聚会、喝茶、聊天、游戏的地方。
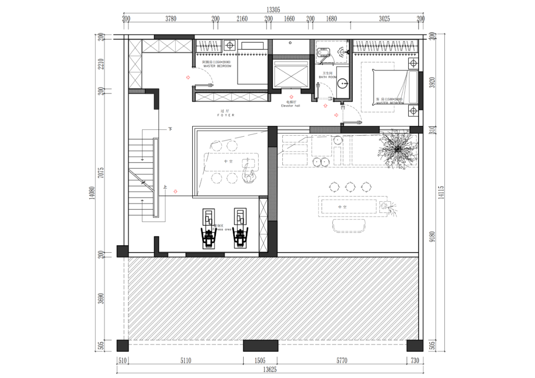
2、负一层利用错层空间保证入户的高度,规划健身区域。中间挑空让负一层和负二层联系更加紧密,且共享光线。
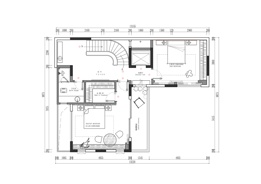
3、一层修改以前的入户方式,外扩玄关的区域,让客厅不再局促;左侧将以前的采光井改为地下室的楼梯,合理利用空间并且保证采光和通风;右侧重新增加天井位置贯穿负一层和负二层,让阴暗的地下室也有充足的光线贯入。
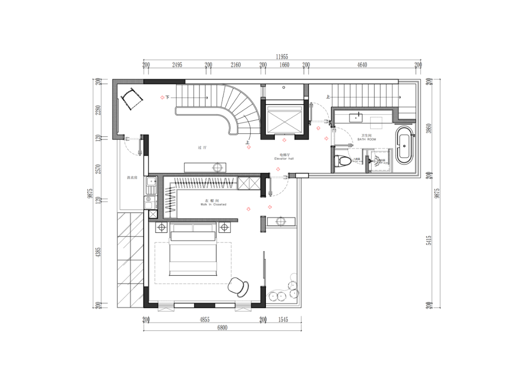
二层原始&平面布置图
Second floor original & plan layout
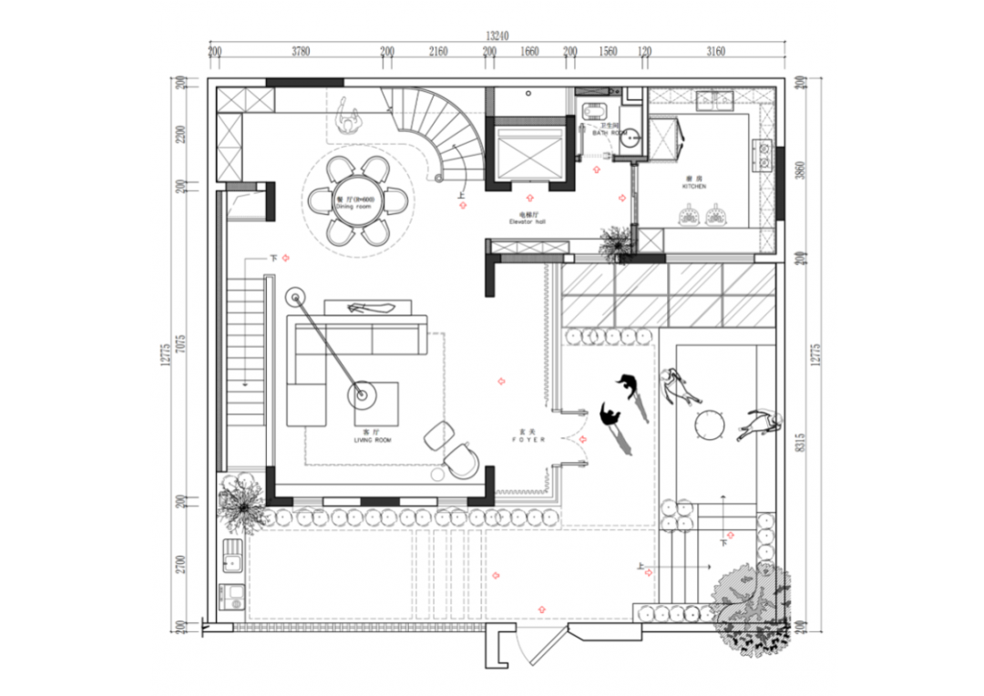
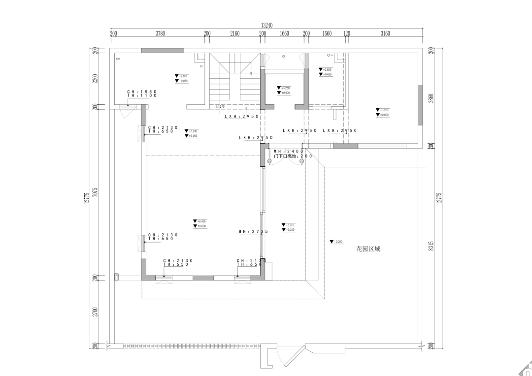
三层原始&平面布置图
Three floors original & floor plan
—
设计机构介绍
Introduction of Design Organization

领衔人/艺术总监田艾灵女士1999年从四川美术学院毕业、进修于米兰理工大学设计与战略管理硕士等。2002年创立了十二分空间设计;2020年裂变创立了软装品牌桓墅空间艺术设计机构;2022年在足够的作品沉淀力和全系统落地执行力的基础上,厚积薄发创立专注于更专业、更系统领域、面向全国高阶空间设计需求的品牌“岭众联合-田艾灵设计。”