



-
空间划分
Space division
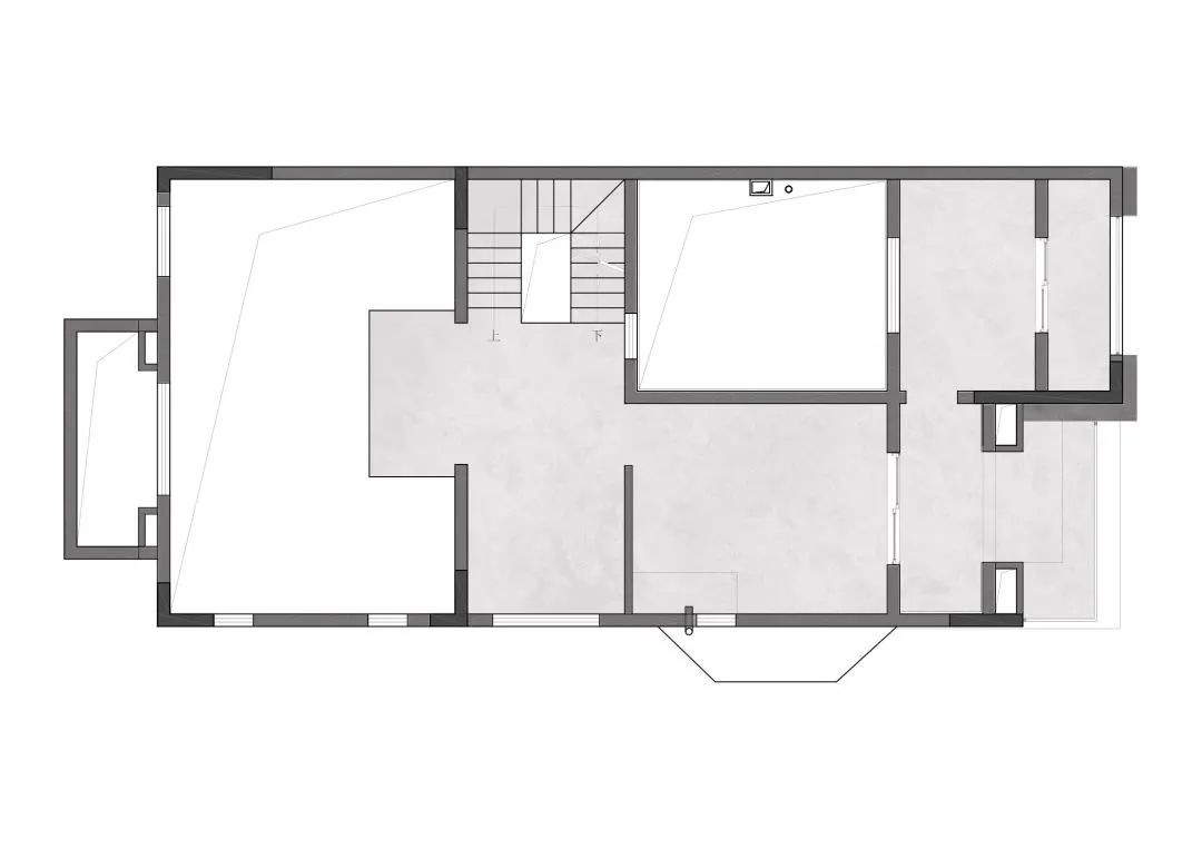
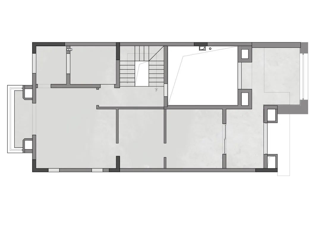
▲ 负楼层&一层&二层&三层原始结构图
Original structure drawing
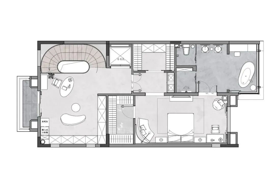
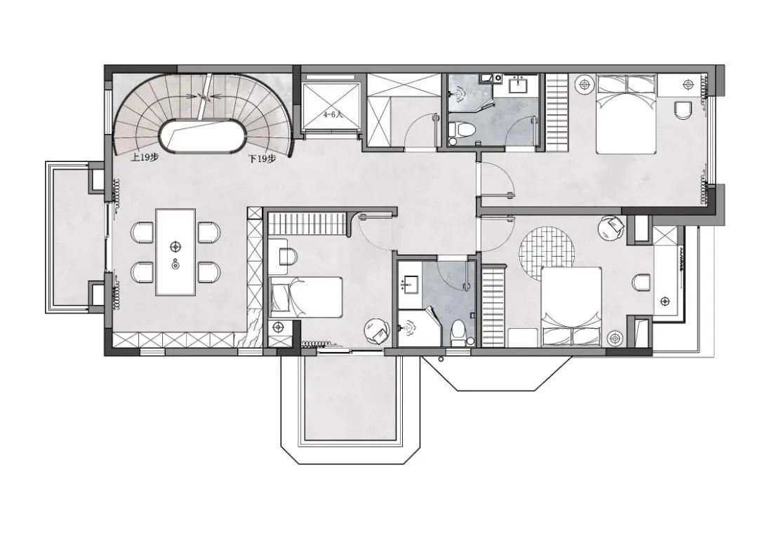
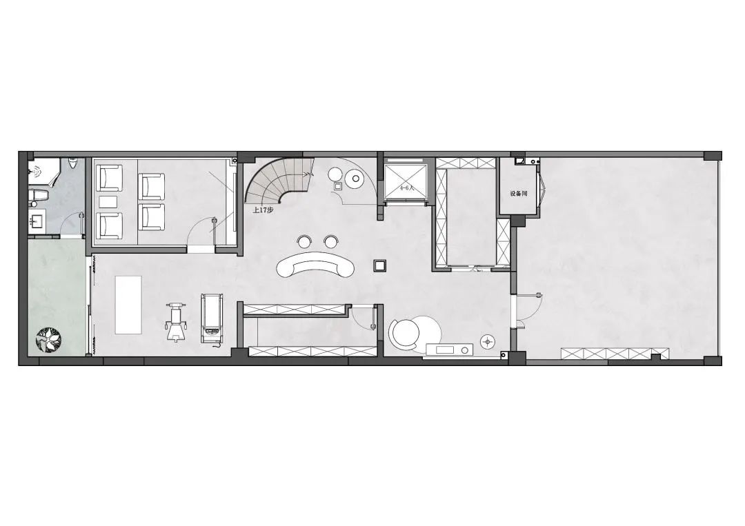
▲ 负二层&负一层&一层&二层&三层平面布置图
Floor plan

▲ 户型爆炸图
Apartment type explosion map
既要也要、从来都是难题。设计团队从方案阶段开始,协同细致规划室外景观与室内使用人群的尺度关系。很多的细节均来自于定制,个性化的设计更需要系统的落地把控能力,这就是我们空间设计所需要去实现的。
Both want and want, is always a difficult problem. The design team started from the scheme stage to coordinate the detailed planning of the scale relationship between the outdoor landscape and the users. A lot of details are from customization, personalized design needs more system landing control ability, which is what we need to achieve in space design.
一层拥有雅静的男主人茶室、备用卧室套房等;
The first floor has the elegant master tea room, spare bedroom suite, etc.
二层三个孩子套房,各安其所,各有其调。亲子陪伴学习厅,是共同活动的趣味乐园;
On the second floor, there are three suites for children, each with its own place and style. The parent-child study hall is a fun paradise for common activities.
三层规划出三个不同功能需求的衣帽间,主卧套房、阳光浴室,让品质妥帖给主人;
On the third floor, there are three cloakrooms with different functional requirements, master bedroom suite and sunshine bathroom, so that the quality is appropriate to the host;
将花园下沉,让负一层室内明媚,内外联动,成为了挑空大客厅和餐厨区,以及客房、工人房也得到合理规制;
The garden is sunk to make the interior of the first floor bright and bright. The interior and exterior are linked together to become a large living room and kitchen area with empty space. The guest rooms and workers' rooms are also regulated reasonably;
喝酒聊天、观影、运动归置于不影响邻居的负二层。
Drinking, chatting, watching movies and playing sports are placed in the negative second floor, which does not affect the neighbors.
1
色彩张扬个性
阅览生命斑斓
Color and individuality
See the beauty of life


打开负一层和一层的空间,在不影响二层卧室、学习厅功能的同时,拥有了挑高大厅,会客厅、餐厅被规制在整个大的公共空间。
Open the space of the negative first floor and the first floor, without affecting the function of the bedroom and learning hall on the second floor, have a high hall, the living room and dining room are structured in the whole large public space.


进入开敞的一层空间,圆弧形的“剧场”将灿烂情绪推向高潮。空间感、尺度感、软装布料、色彩搭配、照明设计等等都切实符合设计脉络的氛围营造。
Entering the open space on the first floor, the circular "theater" pushes the brilliant mood to the climax. The sense of space, scale, soft clothing, color collocation, lighting design and so on are really in line with the design of the context of the atmosphere.
除了形式的艺术和雕塑感,设计更注重空间给人的精神性。空间被行云流水的线条勾勒,所有陈设都遵循着一套内部法则:结构感、建筑感在斑斓的色调中贯穿,以柔和的方式营造内心平静而又饱满的力量。






2
营造一方幽静和诗意
时时回望、时时思考
Create a quiet and poetic
Always look back, always think


与一楼花园内外链接,茶室透过幽静设计语言,将东方意趣引入室内,没有繁复的雕梁画栋,没有夺目的色彩,空间的质朴纯净,将茶室的主角位,留给了居于此的人、物、景。
Connected with the interior and exterior of the garden on the first floor, the teahouse introduces Oriental interest into the interior through the quiet design language. There are no complicated carved beams and painted buildings, no dazzling colors, and the simple and pure space leaves the leading role of the teahouse to the people, objects and scenery living here.

花园的绿意与微风透门而入,一盏孤灯,一卷文字,一缕月色,一杯香茗,居于此间,万籁皆藏于心。三五好友品茗相聚,缱绻夫妻望月小酌,闲暇时光于此度过。
Garden green and breeze through the door, a lone lamp, a scroll of text, a wisp of moonlight, a cup of tea, living here, all sound of nature are hidden in the heart. Three or five friends drink tea together, tempting husband and wife full moon drink, leisure time spent here.

3
从时尚到艺术的转场
From fashion to art

设计对楼梯重新塑造,楼梯与建筑感构件形成咬合关系,如同一件巨大的艺术雕塑蜿蜒生长,线性的设计语言为连续空间营造出轻盈灵动的姿态,让空间变得隐约而自然。
The design reshapes the staircase, forming an occlusion relationship with the architectural component, like a huge art sculpture winding growth, linear design language creates a light and flexible attitude for the continuous space, making the space vague and natural.

4
自由与纯真
广阔想象世界
Freedom and innocence
Wide imaginary world


二层是专属于孩子活动以及生活的区域,亲子陪伴空间采用明媚活泼温馨的色彩晕染,与黑白的摩登元素碰撞出别致的氛围感,桌椅、陈列柜、灯具等,呈现整体的圆润柔软形态。
The second floor is dedicated to children's activities and living areas. The parent-child space uses bright, lively and warm colors to create a chic atmosphere with the collision of black and white modern elements. Tables, chairs, display cases, lamps and lanterns, etc., present the overall rounded and soft form.



5
静谧栖息
安放无拘的灵魂
Quiet dwelling
To place an unbound soul


三楼空间作为主人用房,设计师将所需的所有功能都融合其中,呈现为由内而外的高定极奢极美空间,一切都遵从内心欢喜,呈现独一无二的专属居所。
The space on the third floor is used as the master's room. The designer integrates all the required functions into it, presenting it as a high-end and extremely luxurious and beautiful space inside and out. Everything follows the inner joy and presents a unique and exclusive residence.



“线条”成为这里的绝对主角,纵线、横线,通过木作、金属、皮革等不同材质,纵向拉伸空间高度,横向交织功能区隔,屏风意向在主卧排列出新的秩序,线条感极强的灯饰、座椅,隐含强烈的现代设计语言,在宁静时光中绽放,回归内在力量。
"Line" has become the absolute protagonist here. Vertical and horizontal lines stretch the height of space lengthwise and interweave functional zones horizontally through different materials such as wood, metal and leather. The screen is intended to arrange a new order in the master bedroom.



寝居空间、衣帽间、和会客厅一致精选了岭众全案优选意大利品牌REX去呈现的阳光浴室,每个体块自由穿插、亲密连接,动线清晰合理。主卫将富有东方质感的厚重天然大理石、古铜金属等材质被运用其中,低调而稳重,疗愈而放松。
The sleeping space, cloakroom and living room are selected from the sunny bathroom presented by REX, the Italian brand, which is selected by Lingzhong Whole case. Each individual block is freely interspersed and intimately connected, and the moving line is clear and reasonable. The main bathroom will be rich in Oriental texture of thick natural marble, copper metal and other materials are used, low-key and stable, healing and relaxation.
6
休闲场域
注入生活仪式
Leisure field
Infusion ritual


负二楼酒架、吧台,一切尺度在这里焕发张力。暗调的运用,玻璃异形切割发光吧台,月球表面质感,星空灯与影视厅的星空顶,运用特别设定的灯光造出宇宙之势,神秘且私密。
On the second floor, the wine rack, the bar, all scales are full of tension here. The use of dark tone, glass shaped cut luminescent bar, lunar surface texture, starry sky lamp and the starry roof of the movie and video hall, the use of specially set lights to create a cosmic potential, mysterious and private.

7
游园漫步
居然城市间
Stroll in the garden
intercity





